Verkocht: Noorder Kerkedijk 169, 3078 PD Rotterdam

Beschrijving

In de wijk "Groot IJsselmonde" nabij het winkelcentrum "Keizerswaard" staat deze goed verzorgde twee onder één kap woning met een diepe achtertuin gelegen op het oosten. De woning is verdeeld over drie woonlagen en gelegen aan een dijk in de directe omgeving van diverse voorzieningen. De woning heeft op de begane grond een ruime, lichte doorzon woonkamer met een halfopen, lichte inbouwkeuken welke voorzien is van moderne inbouwapparatuur. Op de verdieping zijn twee slaapkamers en een luxe badkamer gesitueerd. In het souterrain, wat gedeeltelijk in de dijk is gelegen, zijn twee ruime slaapkamers met een tweede moderne badkamer. Deze woning is uitermate geschikt voor een gezin met inwonende ouder(s) of kantoor- praktijkruimte aan huis. Aan de achterzijde een diepe achtertuin met een half vrijstaande geheel geïsoleerde houten berging en overkapping.

Indeling

Ruime entree, hal, meterkast, toiletruimte en met de trapopgang naar het souterrain alsmede de eerste verdieping. Vanuit de hal naar de lichte, doorzon woonkamer met schuifpui naar het dakterras. Aansluitend aan de woonkamer een halfopen moderne, L-vormige inbouwkeuken met inbouwapparatuur zoals: vaatwasser, elektrische oven, combi magnetron, inductie kookplaat met ingebouwde afzuigkap. De gehele vloer is voorzien van een eikenhouten vloer (visgraat). Airconditioned in de woonkamer.

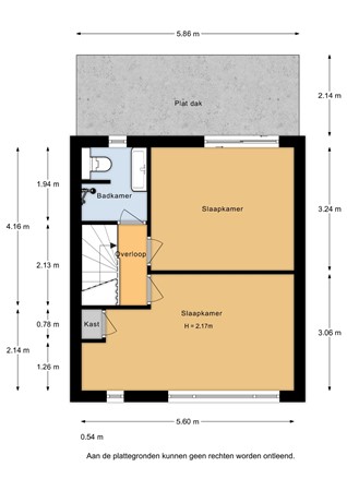
Eerste verdieping

Overloop met toegang naar de twee slaapkamers en de moderne badkamer. Deze badkamer is voorzien van wastafelmeubel, wandcloset, inloopdouche en handdoekradiator. Vanuit de slaapkamer via de schuifpui toegang naar het platte dak. Behoudens de badkamer is de gehele vloer voorzien van een eikenhouten vloer. Airconditioned in beide slaapkamers.

Overige verdiepingen

Souterrain:
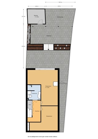
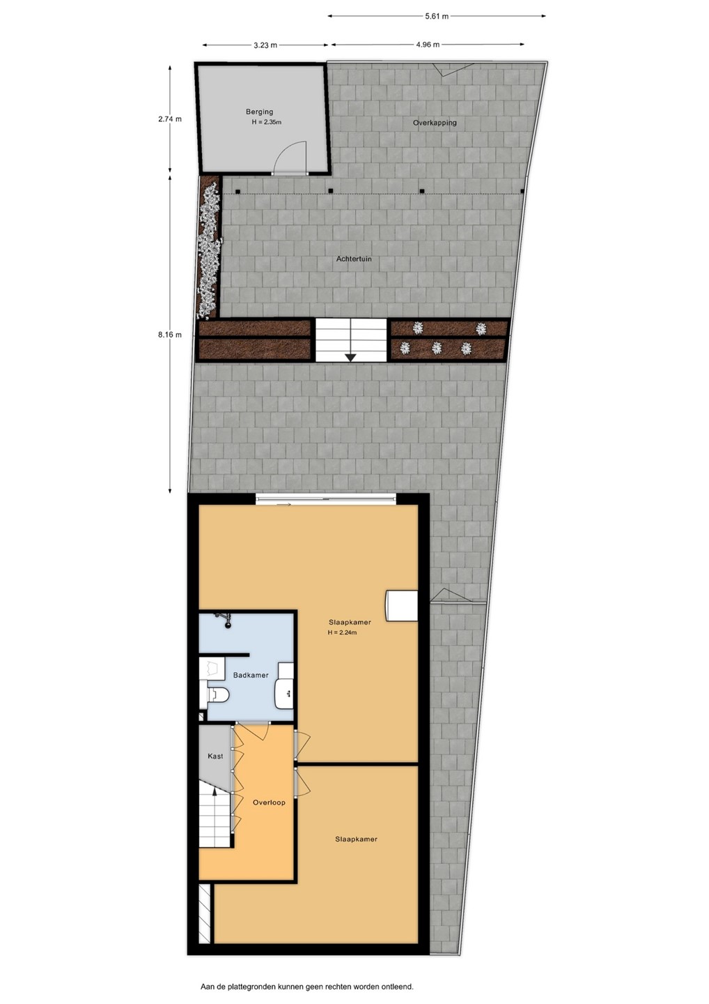
Vanuit de hal op de begane grond, via de trap, naar het souterrain. Op deze verdieping zijn twee ruime slaapkamers en de tweede moderne badkamer gesitueerd. De badkamer is voorzien van wastafelmeubel, inloopdouche, wandcloset, handdoekradiator en wasmachine aansluiting. Vanuit één van de slaapkamers is er toegang naar de diepe achtertuin. Deze verdieping is ook uitermate geschikt voor een kantoor- of praktijk ruimte aan huis. Ook voor een inwonende ouder die ook haar of zijn privacy wilt behouden. Deze verdieping is voorzien van een tegelvloer. Alle voorbereidingen, voor een tweede keuken, zijn getroffen.

Tuin

Diepe achtertuin met achterom. In de tuin een ruime, geïsoleerde houten berging van 3,25 x 2,80 mtr; alsmede een overkapping van 5,00 x 3,50 mtr.

Bijzonderheden

- centrale ligging en op loopafstand naar het winkelcentrum
- In enkele autominuten naar de A16
- wandelen en ontspanning in het park "De Twee Heuvels"
- openbaar vervoer in de directe omgeving
- de begane grond en het souterrain zijn geheel voorzien van vloerverwarming.
- airconditioned in de woonkamer en beide slaapkamers op de verdieping
- de verdieping is voorzien van radiatoren
- de ruiten zijn voorzien van HR++ glas
- centrale verwarmingsketel van 2022
- drie schuifpuien
- bitumineuze dakbedekking vernieuwd in 2022
- er zijn voorbereiding getroffen voor het aanbrengen van rolluiken
- er zijn voorbereiding getroffen voor het aanbrengen van een tweede keuken
- geïsoleerde houten berging met overkapping
- badkamer verdieping van 2025
- badkamer souterrain van 2022
- inbouwkeuken van 2024
- eikenhouten vloeren op de begane grond en eerste verdieping.
- buiten schilderwerk is van 2022

Mocht u na lezen interesse hebben om meer informatie te ontvangen over deze woning of wilt de woning bezichtigen? Neem dan contact op met ons kantoor.

NEN2580:
De Meetinstructie is gebaseerd op de NEN2580. De Meetinstructie is bedoeld om een meer eenduidige manier van meten toe te passen voor het geven van een indicatie van de gebruiksoppervlakte. De Meetinstructie sluit verschillen in meetuitkomsten niet volledig uit, door bijvoorbeeld interpretatieverschillen, afrondingen of beperkingen bij het uitvoeren van de meting. “Deze informatie is door ons met de nodige zorgvuldigheid samengesteld.

Koopovereenkomst:
De koopovereenkomst is pas rechtsgeldig na ondertekening van verkoper en koper: Een mondelinge overeenstemming tussen de particuliere verkoper en de particuliere koper is niet rechtsgeldig, eer is nog geen koop. Er is pas sprake van een rechtsgeldige transactie als de particuliere verkoper en de particuliere koper de koopovereenkomst hebben ondertekend. Een bevestiging van de mondelinge overeenstemming per e-mail of een toegestuurd concept van de koopovereenkomst wordt overigens nog niet gezien als een ondertekende koopovereenkomst.

Groenendael Makelaardij wordt echter geen enkele aansprakelijkheid aanvaard voor enige onvolledigheid, onjuistheid of anderszins, dan wel de gevolgen daarvan.

Kenmerken

Overdracht
Referentienummer 132020336
Vraagprijs € 490.000,- k.k.
Inrichting Ja
Inrichting Gestoffeerd
Status Verkocht
Aanvaarding In overleg
Aangeboden sinds Zondag 18 mei 2025
Laatste wijziging Woensdag 30 juli 2025
Bouw
Type object Woonhuis, eengezinswoning, geschakelde twee onder een kap woning, dijkwoning
Soort bouw Bestaande bouw
Bouwperiode 1934
Dakbedekking Bitumen
Type dak Platdak
Keurmerken Brandveiligheid
Isolatievormen Ankerloze spouwmuren
Dakisolatie
HR-glas
Spouwmuren
Vloerisolatie
Oppervlaktes en inhoud
Perceeloppervlakte 141 m²
Woonoppervlakte 146 m²
Inhoud 460 m³
Oppervlakte externe bergruimte 9 m²
Indeling
Aantal bouwlagen 2 (en 1 kelder)
Aantal kamers 5 (waarvan 4 slaapkamers)
Aantal badkamers 2 (en 1 apart toilet)
Locatie
Ligging Aan rustige weg
Dichtbij openbaar vervoer
In woonwijk
Nabij school
Vrij uitzicht
Tuin
Type Achtertuin
Hoofdtuin Ja
Oriëntering Zuidoost
Heeft een achterom Ja
Staat Prachtig aangelegd
Energieverbruik
Energielabel B
CV ketel
CV ketel HR-107
Warmtebron Gas
Bouwjaar 2022
Combiketel Ja
Eigendom Eigendom
Uitrusting
Verwarmingssysteem Airconditioning
Centrale verwarming
Vloerverwarming (gedeeltelijk)
Ventilatie methode Mechanische ventilatie
Keukenvoorzieningen Inbouwapparatuur
Badkamervoorzieningen Badkamer 1 Inloopdouche
Toilet
Wasmachineaansluiting
Wastafelmeubel
Badkamervoorzieningen Badkamer 2 Inloopdouche
Toilet
Wastafelmeubel
Heeft airco Ja
Glasvezelaansluiting aanwezig Ja
Tuin aanwezig Ja
Heeft schuur/berging Ja
Heeft een schuifpui Ja
Heeft ventilatie Ja
Kadastrale gegevens
Kadastrale aanduiding IJsselmonde D 4827
Perceeloppervlakte 141 m²
Omvang Geheel perceel
Eigendomsituatie Eigendom belast met erfpacht
Lasten Voortdurend, met afkoopoptie, afgekocht tot 14-04-2095

Plattegronden

Brochure(s) en overige bijlagen