 
     
            | Prijs | € 490.000,- k.k. | 
| Type object | Woonhuis, eengezinswoning, geschakelde twee onder een kap woning, dijkwoning | 
| Perceeloppervlakte | 141 m² | 
| Woonoppervlakte | 146 m² | 
| Aanvaarding | In overleg | 
| Status | Verkocht | 
In de wijk "Groot IJsselmonde" nabij het winkelcentrum "Keizerswaard" staat deze goed verzorgde twee onder één kap woning met een diepe achtertuin gelegen op het oosten. De woning is verdeeld over drie woonlagen en gelegen aan een dijk in de directe omgeving van diverse voorzieningen. De woning heeft op de begane grond een ruime, lichte doorzon woonkamer met een halfopen, lichte inbouwkeuken welke voorzien is van moderne inbouwapparatuur. Op de verdieping zijn twee slaapkamers en een luxe badkamer gesitueerd. In het souterrain, wat gedeeltelijk in de dijk is gelegen, zijn twee ruime slaapkamers met een tweede moderne badkamer. Deze woning is uitermate geschikt voor een gezin met inwonende ouder(s) of kantoor- praktijkruimte aan huis. Aan de achterzijde een diepe achtertuin met een half vrijstaande geheel geïsoleerde houten berging en overkapping.
Ruime entree, hal, meterkast, toiletruimte en met de trapopgang naar het souterrain alsmede de eerste verdieping. Vanuit de hal naar de lichte, doorzon woonkamer met schuifpui naar het dakterras. Aansluitend aan de woonkamer een halfopen moderne, L-vormige inbouwkeuken met inbouwapparatuur zoals: vaatwasser, elektrische oven, combi magnetron, inductie kookplaat met ingebouwde afzuigkap. De gehele vloer is voorzien van een eikenhouten vloer (visgraat). Airconditioned in de woonkamer.
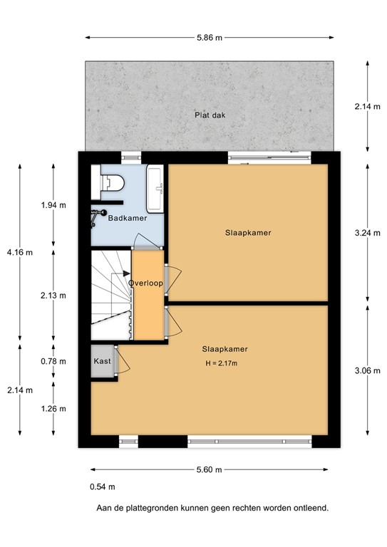
Overloop met toegang naar de twee slaapkamers en de moderne badkamer. Deze badkamer is voorzien van wastafelmeubel, wandcloset, inloopdouche en handdoekradiator. Vanuit de slaapkamer via de schuifpui toegang naar het platte dak. Behoudens de badkamer is de gehele vloer voorzien van een eikenhouten vloer. Airconditioned in beide slaapkamers.
Souterrain: Vanuit de hal op de begane grond, via de trap, naar het souterrain. Op deze verdieping zijn twee ruime slaapkamers en de tweede moderne badkamer gesitueerd. De badkamer is voorzien van wastafelmeubel, inloopdouche, wandcloset, handdoekradiator en wasmachine aansluiting. Vanuit één van de slaapkamers is er toegang naar de diepe achtertuin. Deze verdieping is ook uitermate geschikt voor een kantoor- of praktijk ruimte aan huis. Ook voor een inwonende ouder die ook haar of zijn privacy wilt behouden. Deze verdieping is voorzien van een tegelvloer. Alle voorbereidingen, voor een tweede keuken, zijn getroffen.
Diepe achtertuin met achterom. In de tuin een ruime, geïsoleerde houten berging van 3,25 x 2,80 mtr; alsmede een overkapping van 5,00 x 3,50 mtr.
- centrale ligging en op loopafstand naar het winkelcentrum - In enkele autominuten naar de A16 - wandelen en ontspanning in het park "De Twee Heuvels" - openbaar vervoer in de directe omgeving - de begane grond en het souterrain zijn geheel voorzien van vloerverwarming. - airconditioned in de woonkamer en beide slaapkamers op de verdieping - de verdieping is voorzien van radiatoren - de ruiten zijn voorzien van HR++ glas - centrale verwarmingsketel van 2022 - drie schuifpuien - bitumineuze dakbedekking vernieuwd in 2022 - er zijn voorbereiding getroffen voor het aanbrengen van rolluiken - er zijn voorbereiding getroffen voor het aanbrengen van een tweede keuken - geïsoleerde houten berging met overkapping - badkamer verdieping van 2025 - badkamer souterrain van 2022 - inbouwkeuken van 2024 - eikenhouten vloeren op de begane grond en eerste verdieping. - buiten schilderwerk is van 2022 Mocht u na lezen interesse hebben om meer informatie te ontvangen over deze woning of wilt de woning bezichtigen? Neem dan contact op met ons kantoor. NEN2580: De Meetinstructie is gebaseerd op de NEN2580. De Meetinstructie is bedoeld om een meer eenduidige manier van meten toe te passen voor het geven van een indicatie van de gebruiksoppervlakte. De Meetinstructie sluit verschillen in meetuitkomsten niet volledig uit, door bijvoorbeeld interpretatieverschillen, afrondingen of beperkingen bij het uitvoeren van de meting. “Deze informatie is door ons met de nodige zorgvuldigheid samengesteld. Koopovereenkomst: De koopovereenkomst is pas rechtsgeldig na ondertekening van verkoper en koper: Een mondelinge overeenstemming tussen de particuliere verkoper en de particuliere koper is niet rechtsgeldig, eer is nog geen koop. Er is pas sprake van een rechtsgeldige transactie als de particuliere verkoper en de particuliere koper de koopovereenkomst hebben ondertekend. Een bevestiging van de mondelinge overeenstemming per e-mail of een toegestuurd concept van de koopovereenkomst wordt overigens nog niet gezien als een ondertekende koopovereenkomst. Groenendael Makelaardij wordt echter geen enkele aansprakelijkheid aanvaard voor enige onvolledigheid, onjuistheid of anderszins, dan wel de gevolgen daarvan.
| Referentienummer | 132020336 | 
| Vraagprijs | € 490.000,- k.k. | 
| Inrichting | Ja | 
| Inrichting | Gestoffeerd | 
| Status | Verkocht | 
| Aanvaarding | In overleg | 
| Aangeboden sinds | Zondag 18 mei 2025 | 
| Laatste wijziging | Woensdag 30 juli 2025 | 
| Type object | Woonhuis, eengezinswoning, geschakelde twee onder een kap woning, dijkwoning | 
| Soort bouw | Bestaande bouw | 
| Bouwperiode | 1934 | 
| Dakbedekking | Bitumen | 
| Type dak | Platdak | 
| Keurmerken | Brandveiligheid | 
| Isolatievormen | Ankerloze spouwmuren Dakisolatie HR-glas Spouwmuren Vloerisolatie | 
| Perceeloppervlakte | 141 m² | 
| Woonoppervlakte | 146 m² | 
| Inhoud | 460 m³ | 
| Oppervlakte externe bergruimte | 9 m² | 
| Aantal bouwlagen | 2 (en 1 kelder) | 
| Aantal kamers | 5 (waarvan 4 slaapkamers) | 
| Aantal badkamers | 2 (en 1 apart toilet) | 
| Ligging | Aan rustige weg Dichtbij openbaar vervoer In woonwijk Nabij school Vrij uitzicht | 
| Type | Achtertuin | 
| Hoofdtuin | Ja | 
| Oriëntering | Zuidoost | 
| Heeft een achterom | Ja | 
| Staat | Prachtig aangelegd | 
| Energielabel | B | 
| CV ketel | HR-107 | 
| Warmtebron | Gas | 
| Bouwjaar | 2022 | 
| Combiketel | Ja | 
| Eigendom | Eigendom | 
| Verwarmingssysteem | Airconditioning Centrale verwarming Vloerverwarming (gedeeltelijk) | 
| Ventilatie methode | Mechanische ventilatie | 
| Keukenvoorzieningen | Inbouwapparatuur | 
| Badkamervoorzieningen Badkamer 1 | Inloopdouche Toilet Wasmachineaansluiting Wastafelmeubel | 
| Badkamervoorzieningen Badkamer 2 | Inloopdouche Toilet Wastafelmeubel | 
| Heeft airco | Ja | 
| Glasvezelaansluiting aanwezig | Ja | 
| Tuin aanwezig | Ja | 
| Heeft schuur/berging | Ja | 
| Heeft een schuifpui | Ja | 
| Heeft ventilatie | Ja | 
| Kadastrale aanduiding | IJsselmonde D 4827 | 
| Perceeloppervlakte | 141 m² | 
| Omvang | Geheel perceel | 
| Eigendomsituatie | Eigendom belast met erfpacht | 
| Lasten | Voortdurend, met afkoopoptie, afgekocht tot 14-04-2095 | 
 
             
             
             
             
             
             
             
             
             
             
             
             
             
             
             
             
             
             
             
             
             
             
             
             
             
             
             
             
             
             
             
             
             
             
             
             
             
             
             
             
             
             
             
             
             
             
                 
                 
                 
                 
                 
                 
                