Top offer

For rent: Kantoorruimte nabij A2. Op een goed bereikbaar bedrijventerrein staat deze kantoorruimte. Een ideale locatie voor bedrijven die op zoek zijn naar ruimte, bereikbaarheid en comfort.

Spoorlaan 31A, 3645 EK Vinkeveen
€2,750 /mo

Description

Te huur: Kantoorruimte op bedrijventerrein nabij A2 – Vinkenveen
Op een goed bereikbaar bedrijventerrein in Vinkenveen bieden wij deze representatieve kantoorruimte te huur aan. Het pand is goed onderhouden en uitstekend ontsloten via zowel weg- als in de nabijheid van openbaar vervoer. Een ideale locatie voor bedrijven die op zoek zijn naar ruimte, bereikbaarheid en comfort.
Bereikbaarheid:
Per auto: Slechts 9 minuten rijden vanaf afrit Vinkeveen aan de Rijksweg A2 (Amsterdam – Utrecht)

Per OV: Bushalte op ca. 400 meter afstand met verbinding naar station Breukelen. Vanaf station Breukelen directe treinverbindingen naar Utrecht CS en Amsterdam

Indeling & oppervlakte (totaal ca. 317 m²):
Begane grond: ca. 160 m² kantoorruimte
Eerste verdieping: ca. 156 m² kantoorruimte
Souterrain: ca. 158 m² multifunctionele ruimte (bijv. archief, opslag of extra werkplekken)

Bijzonderheden:
✔ Representatief en goed onderhouden pand
✔ Flexibele indelingsmogelijkheden
✔ Goede bereikbaarheid met auto én OV
✔ Geschikt voor diverse bedrijfsdoeleinden

Beschikbaarheid & voorwaarden:

Beschikbaar per direct of in overleg

Meer weten of een bezichtiging plannen?
Neem gerust contact met ons op. Wij vertellen u graag meer over de mogelijkheden van deze kantoorruimte.

Layout

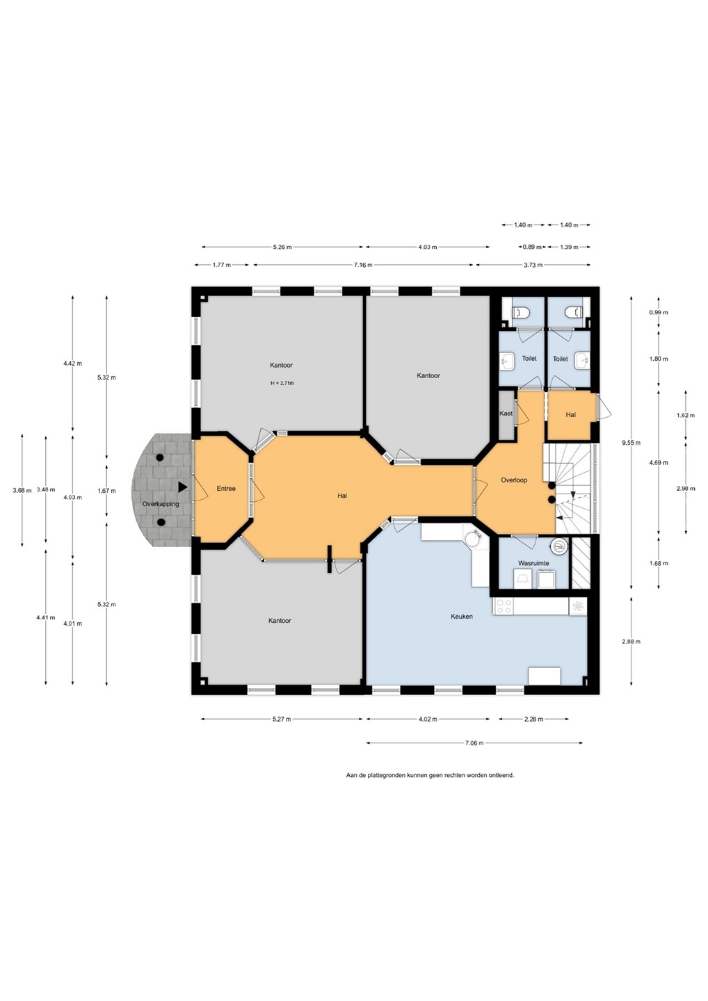
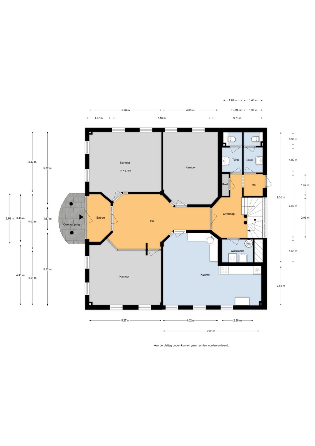
Ruime entree, via de hal toegang naar drie kantoorruimten, kantine, garderobe, dames-, heren- en invalide toiletruimte. Verder aan de achterzijde een ruime trap naar het souterrain en de eerste verdieping. Totale oppervlakte 161 m² van deze verdieping

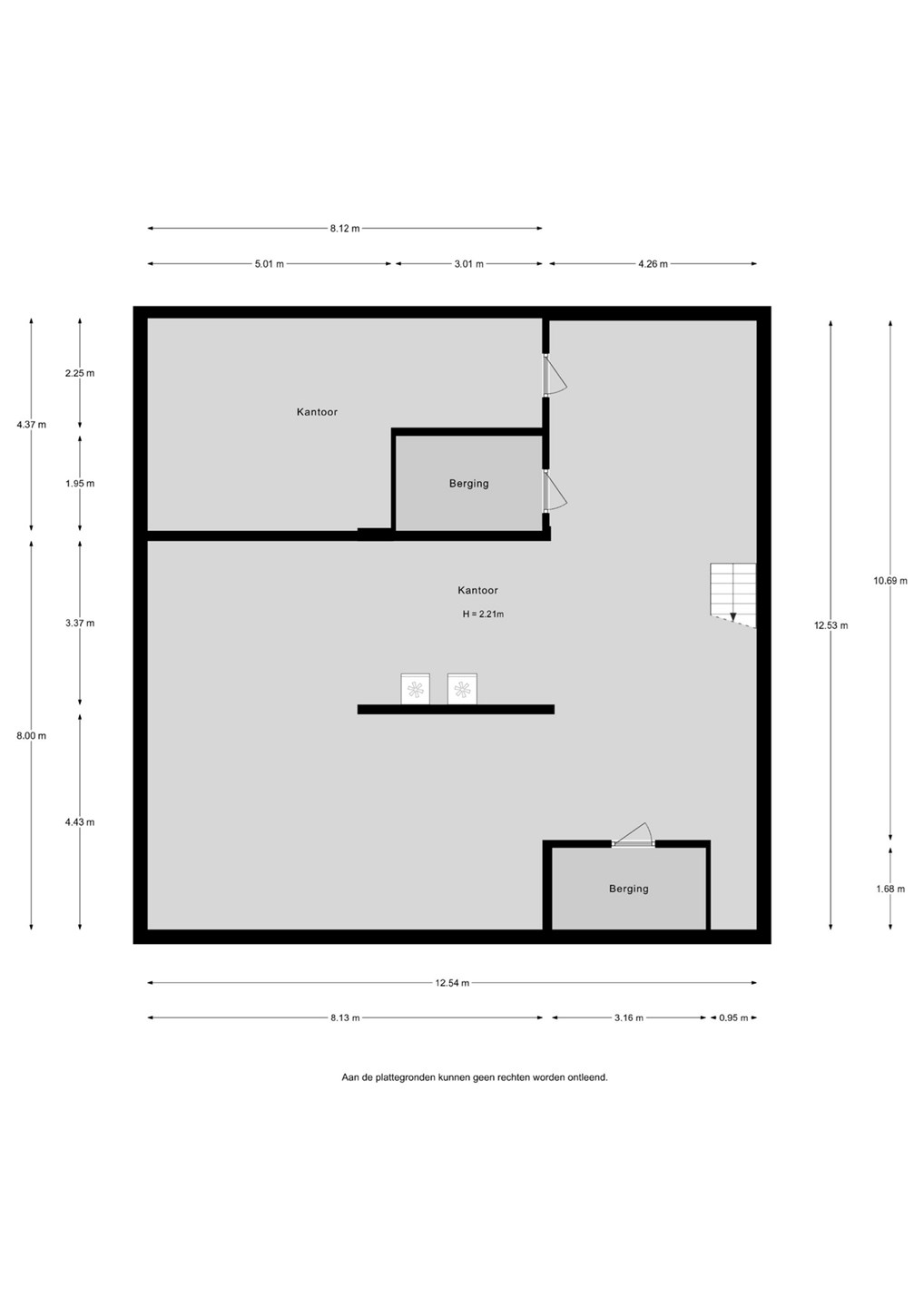
First floor

Royale hal, toegang naar vijf kantoren waarvan één kantoor boven de entree gesitueerd is, garderobe, dames-, heren-toiletruimte en een luxe badkamer.
Totale oppervlakte 156 m² van deze verdieping.

Details

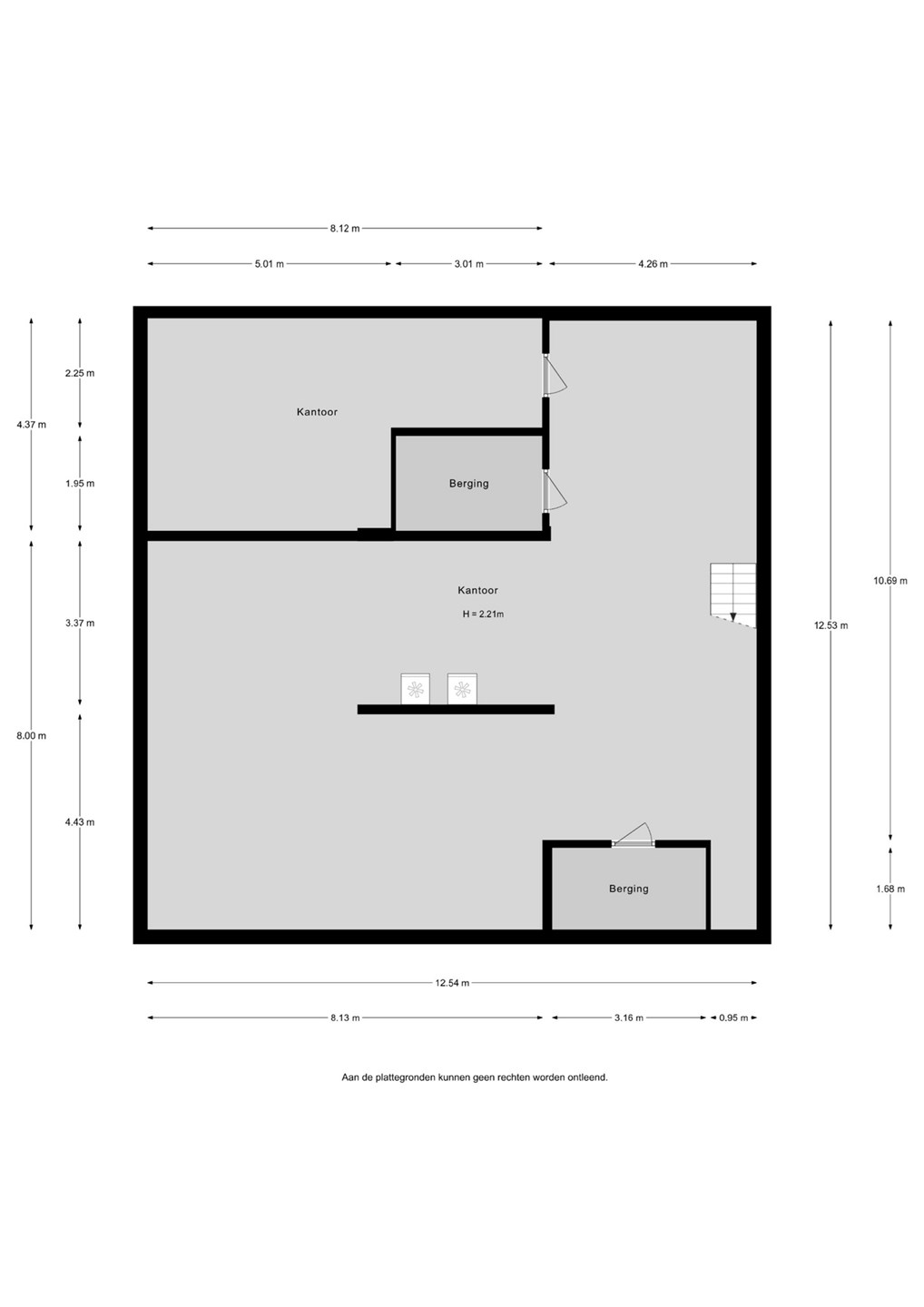
- Souterrain bereikbaar via een vaste trap. met een oppervlakte van 158 m²
- De kantoorruimten zijn, op enkele na, voorzien van zonwering
- Vloerverwarming: op de begane grond en op de 1e verdieping en het souterrain
- 6 parkeerplaatsen op eigen terrein.
- Tegelvloer: begane grond, eerste verdieping en het souterrain
- Brandslanghaspels en brandblussers
- Alarm installatie
- Rookmelders
- Huurperiode 5 jaar. Kortere periode is bespreekbaar.

Mocht u na lezen interesse hebben om meer informatie te ontvangen over deze woning of wilt de woning bezichtigen? Neem dan contact op met ons kantoor.

Groenendael Makelaardij wordt echter geen enkele aansprakelijkheid aanvaard voor enige onvolledigheid, onjuistheid of anderszins, dan wel de gevolgen daarvan.

NEN2580:
De Meetinstructie is gebaseerd op de NEN2580. De Meetinstructie is bedoeld om een meer eenduidige manier van meten toe te passen voor het geven van een indicatie van de gebruiksoppervlakte. De Meetinstructie sluit verschillen in meetuitkomsten niet volledig uit, door bijvoorbeeld interpretatieverschillen, afrondingen of beperkingen bij het uitvoeren van de meting. “Deze informatie is door ons met de nodige zorgvuldigheid samengesteld.

Features

Offer
Reference number 132020310
Asking price €2,750 per month
Deposit €8,250
Upholstered Yes
Upholstered Upholstered
Acceptance Immediately
Offered since 19 December 2024
Last updated 16 September 2025
Construction
Type of residence Office
Type of construction Existing estate
Construction period 1990
Surfaces and content
Plot size 9,130 m²
Floor area 317 m²
In units from 156 m²
Layout
Number of floors 2
Outdoors
Location Business park
Industrial area
Near highway
On a quiet street
Local amenities Bank at 500 meters to 1000 meters
Cashmachine at 500 meters to 1000 meters
Recreation at 500 meters to 1000 meters
Restaurant within 500 meters
Shop within 500 meters
Supermarket within 500 meters
Accessibility Busstop at 500 meters to 1000 meters
Railway station at 5000 meters or more
Highway exit at 1500 meters to 2000 meters
Features
Number of parking spaces 8
Cadastral informations
Cadastral designation De Ronde Venen D 1322
Area 9,130 m²
Range Partial lot
Ownership Full ownership
Please contact me

Recently viewed

View all listings