Verkocht: Driekamer-maisonnette woning met eigen parkeerplaats onder de carport, praktische stenen berging en een heerlijk zonnig balkon op het zuidoosten Een perfecte plek om van de zon te genieten.

Frans Halsstraat 46, 3443 TA Woerden

Beschrijving

Aan de Frans Halsstraat presenteren wij met trots deze verzorgde driekamer-maisonnette met een eigen parkeerplaats onder de carport én een praktische stenen berging. Dit ruime en lichte appartement beschikt over een sfeervolle woonkamer, twee volwaardige slaapkamers en een heerlijk zonnig balkon op het zuidoosten – een perfecte plek om van de ochtend- en middagzon te genieten.

De woning bevindt zich op een uitstekende locatie: op slechts enkele minuten lopen bereikt u het bruisende centrum van Woerden met een gevarieerd aanbod aan winkels, gezellige horeca en het treinstation. Ideaal voor wie comfort en gemak wil combineren.

De maisonnette maakt onderdeel uit van een kleinschalig, goed onderhouden complex uit 1984. De berging bevindt zich op de begane grond achter de carport, terwijl de woning zelf gunstig is gesitueerd op de hoek van de eerste en tweede verdieping, wat zorgt voor extra privacy en veel lichtinval

Indeling

De berging bevindt zich op de begane grond, direct achter de carport, en de maisonnette is gunstig gelegen op de hoek van de eerste en tweede etage — wat zorgt voor extra licht en privacy.

Indeling
U parkeert uw auto comfortabel onder de carport of plaatst uw fiets in de eigen berging. Vanuit dit deel van het complex betreedt u via de achterzijde de centrale hal, waar zich de trapopgang en de brievenbussen bevinden.

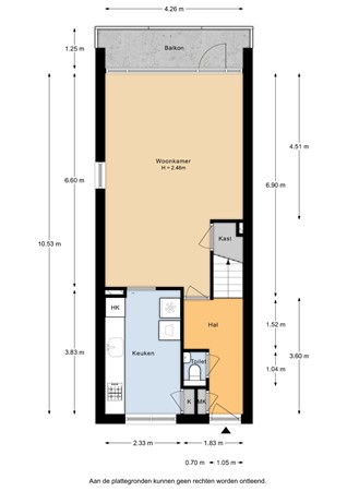
Eerste verdieping

Via het trappenhuis bereikt u de galerij aan de achterzijde van het complex. Helemaal aan het einde hiervan vindt u de entree van uw eigen appartement. U komt binnen in een verzorgde hal met meterkast, trapopgang en een modern toilet met fontein. Vanuit de hal loopt u direct door naar de woonkamer.

De woonkamer is een lichte en uitnodigende ruimte dankzij de grote raampartij in de achtergevel én het extra zijraam, wat zorgt voor een fijne daglichtinval. Aan de voorzijde bevindt zich de knusse zithoek, waarvandaan u via een loopdeur toegang heeft tot het zonnige balkon.

Aan de achterzijde van het appartement ligt de keuken, uitgerust met diverse vaste kasten, een losse koel-/vriescombinatie, 4-pits gaskookplaat, oven en een wasmachineaansluiting. Een praktische en functionele ruimte met volop mogelijkheden.

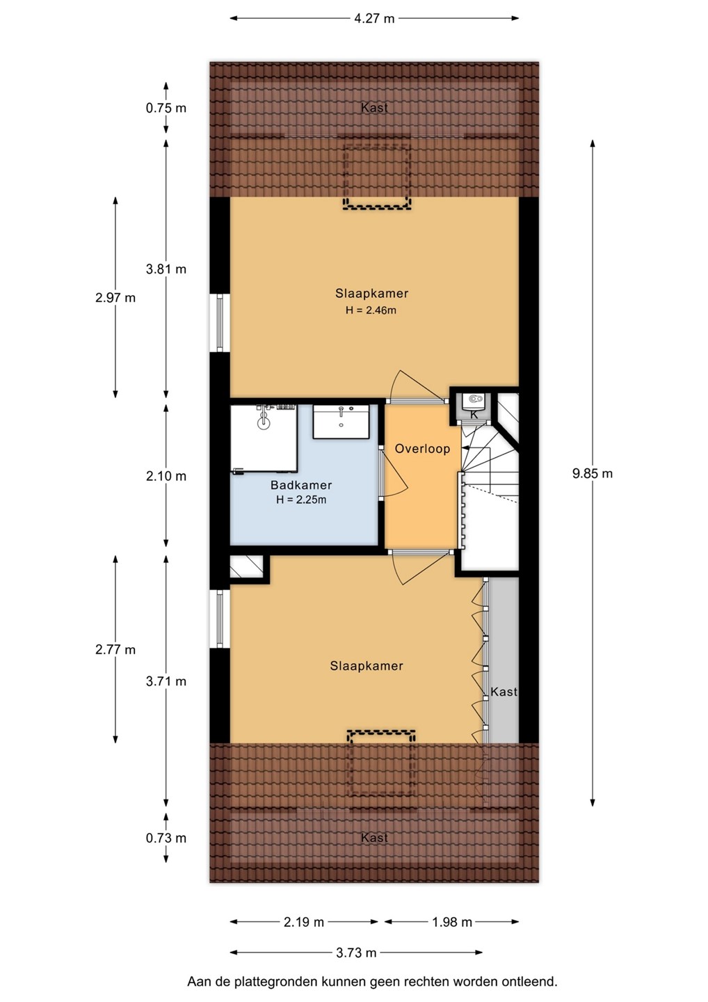
Tweede verdieping

Via de vaste trap bereikt u de overloop op de slaapverdieping. Vanaf hier heeft u toegang tot de cv-kast, twee comfortabele slaapkamers en de badkamer.

De badkamer, centraal op de verdieping gelegen, is uitgerust met een wastafel, designradiator en een douchecabine. Aan weerszijden van de badkamer bevinden zich twee ruime slaapkamers. Eén van de kamers beschikt over een praktische vaste kastenwand en beide slaapkamers zijn voorzien van een tv-aansluiting.

Balkon

“Een heerlijk dakterras aan de voorzijde op het zuiden, waar u kunt genieten van de zon. De perfecte plek voor een ontspannen ontbijt, een goed boek in de middag of lange zomeravonden in alle rust.”

Bijzonderheden

- Ruime driekamer-maisonnette gelegen op de eerste en tweede verdieping
- Hoekmaisonnette waardoor extra lichtinval en meer privacy
- Eigen parkeerplaats onder de carport
- Keuken voorzien van een vaatwasser- en drogeraanluiting
- Stenen berging op de begane grond, direct achter de carport
- Kleinschalig en goed onderhouden complex uit 1984
- Lichte woonkamer met grote raampartij en extra zijraam
- Balkon gelegen op het zuidoosten
- Keuken voorzien van diverse vaste kasten, 4-pits gaskookplaat, oven, losse koel-/vriescombinatie en wasmachineaansluiting
- Toilet en fontein op de woonverdieping
- Twee ruime slaapkamers, beide voorzien van een tv-aansluiting
- Eén slaapkamer met vaste kastenwand
- Badkamer centraal gelegen op de verdieping met wastafel, designradiator en douchecabine
- CV-kast op de overloop
- 2024 buitenschilderwerk uitgevoerd alsmede het binnenschilderwerk van de algemene ruimten
- 2025 carports en bergingen hersteld en geschilderd alsmede voorzien van nieuwe bergingsdeuren met nieuw hang en sluitwerk

- Op korte loopafstand van het centrum van Woerden en het korte fietsafstand van het treinstation

Voor onze koopakte gelden de standaard regels. In alle overeenkomsten bedraagt de waarborgsom/ bankgarantie 10% van de koopsom. Deze projectinformatie mag niet worden beschouwd als een aanbieding of offerte en wordt verstrekt onder voorbehoud van goedkeuring door de verkoper.

Groenendael Makelaardij kan geen aansprakelijkheid aanvaarden voor de door ons samengestelde gegevens. Deze informatie, eventuele gesprekken, onderhandelingen etc. zijn allen vrijblijvend. Er is pas overeenstemming bereikt op het moment dat koopovereenkomst door beide partijen is beoordeeld en ondertekend. Tot dat moment hebben partijen het recht om af te zien van een transactie, zonder kostenvergoeding etc. Alle genoemde maten zijn indicatief, er kunnen geen rechten aan worden ontleend.

Kenmerken

Overdracht
Referentienummer 132020374
Vraagprijs € 389.000,- k.k.
Servicekosten € 206,49
Status Verkocht
Aanvaarding Direct
Aangeboden sinds Maandag 8 december 2025
Laatste wijziging Zondag 4 januari 2026
Bouw
Type object Appartement, maisonnette
Woonlaag 1e woonlaag
Soort bouw Bestaande bouw
Bouwperiode 1984
Dakbedekking Bitumen
Dakpannen
Type dak Zadeldak
Isolatievormen Dakisolatie
Dubbel glas
Muurisolatie
Spouwmuren
Oppervlaktes en inhoud
Woonoppervlakte 80 m²
Inhoud 257 m³
Oppervlakte externe bergruimte 7 m²
Oppervlakte gebouwgebonden buitenruimte 6 m²
Indeling
Aantal bouwlagen 2
Aantal kamers 3 (waarvan 2 slaapkamers)
Aantal badkamers 1 (en 1 apart toilet)
Locatie
Ligging Aan rustige weg
Dichtbij openbaar vervoer
Nabij school
Vrij uitzicht
Tuin
Type Zonneterras
Oriëntering Zuidoost
Energieverbruik
Energielabel B
CV ketel
CV ketel Intergas CW4 (hybride klaar)
Warmtebron Gas
Bouwjaar 2023
Combiketel Ja
Eigendom Eigendom
Uitrusting
Aantal parkeerplaatsen 1
Aantal overdekte parkeerplaatsen 1
Warm water CV-ketel
Verwarmingssysteem Centrale verwarming
Ventilatie methode Natuurlijke ventilatie
Badkamervoorzieningen Douche
Wastafel
Wastafelmeubel
Parkeergelegenheid Carport
Heeft een balkon Ja
Heeft kabel-tv Ja
Glasvezelaansluiting aanwezig Ja
Tuin aanwezig Ja
Heeft schuur/berging Ja
Heeft een dakraam Ja
Heeft zonwering Ja
Vereniging van Eigenaren
Ingeschreven bij de KvK Ja
Jaarlijkse vergadering Ja
Periodieke bijdrage Ja
Reservefonds Ja
Meer jaren onderhoudsplan Ja
Onderhoudsverwachting Ja
Opstal verzekering Ja
Kadastrale gegevens
Kadastrale aanduiding Woerden B 7273
Omvang Appartementsrecht of complex
Eigendomsituatie Eigen grond
Kadastrale aanduiding Woerden B 7273
Omvang Appartementsrecht of complex
Eigendomsituatie Eigen grond