Verkocht: In de woonwijk Snel & Polanen met vrij uitzicht aan de voorzijde deze instapklare tussenwoning met opbouw, buiten mensroom, vrij uitzicht, zonnig dakterras op het zuidwesten en energielabel A.

Bergstraat 25, 3446 DB Woerden

Beschrijving

Instapklare tussenwoning met opbouw, buiten mensroom, vrij uitzicht, zonnig dakterras op het zuidwesten en energielabel A.
Op een fraaie locatie in de kindvriendelijke woonwijk Snel & Polanen ligt deze nette en instapklare tussenwoning met een ruim dakterras op het zuidwesten en vrij uitzicht aan de voorzijde. De woning is keurig onderhouden en biedt meer ruimte dan verwacht dankzij de opbouw op de tweede verdieping. Op de eerste verdieping zijn drie slaapkamers en een badkamer en op de tweede verdieping bevindt zich de vierde slaapkamer met toegang tot het zonnige dakterras.

Kortom:
Een instapklare, ruime en sfeervolle woning met veel wooncomfort, een zonnig dakterras en fijne buitenruimte – perfect voor wie op zoek is naar een compleet gezinshuis op een aantrekkelijke locatie!

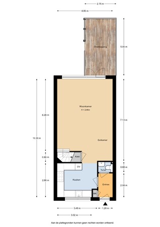
Indeling

Via de verzorgde entree bereikt u de hal met meterkast en toiletruimte voorzien van een wandcloset en hoekfonteintje. Vanuit de hal naar de rechthoekige woonkamer deze beschikt over twee openslaande deuren die zorgen voor een fijne verbinding tussen binnen en de achtertuin en geeft toegang tot de overkapte mensroom (buitenruimte). Deze ruimte heeft een prettige indeling met veel natuurlijk lichtinval. Aan de voorzijde bevindt zich de halfopen U-vormige lichte inbouwkeuken die is uitgevoerd in een moderne stijl en voorzien van diverse inbouwapparatuur, waaronder een gaskookplaat, combi-oven, koelkast, vriezer, vaatwasser en afzuigkap – perfect voor wie graag kookt en gezelligheid in de keuken waardeert. Via de trap, in de woonkamer, bereikt u de eerste verdieping.

Eerste verdieping

Vanaf de overloop heeft u toegang tot drie verzorgde slaapkamers, met oppervlaktes van respectievelijk circa 12 m², 9 m² en 6 m². De kamers zijn praktisch ingedeeld en genieten van veel natuurlijk licht, waardoor ze zowel geschikt zijn als slaapkamer, werkkamer of hobbyruimte. De moderne badkamer is compleet uitgerust met een ligbad, tweede toilet en een wastafel.

Tweede verdieping

Via een vaste trap bereikt u de tweede verdieping, die verrassend veel ruimte biedt. Hier bevindt zich een zeer royale vierde slaapkamer met voldoende plek voor een groot bed, werkhoek of kastenwand. Vanuit deze kamer heeft u toegang tot het zonnige dakterras, waar u heerlijk kunt genieten van de middag- en avondzon.

Daarnaast is er de overloop met een aparte bergruimte met de opstelplaats voor de cv-ketel en mechanische ventilatie, evenals aansluitingen voor de wasmachine en droger – praktisch en netjes uit het zicht.

Balkon

Het ruime dakterras is gelegen op het zuidwesten, waardoor u hier de hele middag en avond kunt genieten van de zon. Dankzij de gunstige ligging biedt het terras een vrij en groen uitzicht, en is het de ideale plek om te ontspannen of gezellig buiten te eten. Hier ervaart u het echte buitengevoel, met de privacy en rust van uw eigen woning.

Tuin

De nette achtertuin ligt op het zuidoosten en is volledig bestraat, waardoor deze onderhoudsvriendelijk is en volop ruimte biedt voor een zit- of eethoek. De tuin is voorzien van een prachtige schutting, die zorgt voor veel privacy. Aangrenzend aan de woning bevindt zich de overkapte mensroom, een heerlijke plek om in elk seizoen van het buitenleven te genieten. Daarnaast beschikt de tuin over een vrijstaande berging, ideaal voor het opbergen van fietsen, tuingereedschap of andere spullen.

Bijzonderheden

- Instapklare tussenwoning met opbouw en verrassend veel ruimte
- Gelegen in de kindvriendelijke wijk Snel & Polanen
- Lichte woonkamer met openslaande deuren naar de tuin en de mensroom
- Moderne, halfopen U-vormige keuken met complete inbouwapparatuur
- Vier slaapkamers, waaronder een royale slaapkamer op de tweede verdieping
- Badkamer met ligbad, wastafel en tweede toilet
- Zonnig dakterras op het zuidwesten met vrij uitzicht
- Onderhoudsvriendelijke achtertuin op het zuidoosten met fraaie schutting
- Overkapte mensroom en vrijstaande berging
- CV-ketel, mechanische ventilatie en aansluitingen voor wasmachine/droger op de tweede verdieping
- Rustige ligging met voorzieningen, scholen en uitvalswegen in de directe omgeving
- Op korte afstand van winkelcentrum Polanen, speelgelegenheden, woonboulevard, scholen, NS station en Rijksweg A-12.
- Energielabel A
- Laminaatvloeren op de begane grond en verdiepingen.

LIGGING:
De tussenwoning is gelegen in de wijk Snel en Polanen en ligt centraal in het "Groene Hart" tussen de grote steden Utrecht, Amsterdam, Rotterdam en Den Haag en goed bereikbaar van de Rijkswegen A12 en A2 en in enkele minuten fiets u naar het het station.

WOERDEN:
Natuurlijk! Woerden is een historische stad en gemeente in de provincie Utrecht, Nederland. De stad ligt aan de rivier de Oude Rijn en heeft een rijke geschiedenis die teruggaat tot de Romeinse tijd. Woerden staat bekend om zijn imposante vestingwerken en middeleeuwse stadscentrum, met gezellige straten, historische gebouwen en het beroemde stadspoortje.
Een van de belangrijkste bezienswaardigheden in Woerden is de vestingwerken, die nog grotendeels intact zijn en een mooi beeld geven van de militaire geschiedenis van de stad. Daarnaast heeft Woerden verschillende musea, zoals het Stadsmuseum, waar je meer kunt leren over de lokale geschiedenis en cultuur.

Woerden is ook bekend om zijn levendige marktdagen en evenementen gedurende het jaar, en het ligt gunstig nabij grotere steden zoals Utrecht en Gouda, waardoor het een ideale plek is voor zowel inwoners als bezoekers die willen genieten van een mix van geschiedenis, cultuur en natuur.
De gemeente Woerden bestaat uit ca. 52.500 inwoners met een uitgebreid voorzieningenpakket van met onder meer vele basisscholen, voortgezet onderwijs van lagere technisch onderwijs tot gymnasium, sportverenigingen en vele winkels in het centrum.
Woerden ligt centraal tussen de steden Utrecht, Rotterdam, Amsterdam en Den Haag. Met de auto bent u binnen 5 minuten op de A12, in circa 20 minuten op de A2 en binnen 50 minuten van de luchthaven (Schiphol).

Woerden, centraal gelegen in het Groene Hart, hee een bruisend centrum met volop parkeergelegenheid, op korte afstand van het station, met al haar monumentale panden, modieuze kledingwinkels, warme bakkers, ambachtelijke slagers, viswinkel en bruine cafés. Aangrenzend het nieuwe en gezellige stadsplein met zonnige terrassen en restaurants van uiteenlopende stijl en smaak.

Woerden is door haar centrale ligging in het Groene Hart het ideale start- en finishpunt voor wandel- en fietsroutes.
Op woensdagochtend en zaterdag zijn de marktdagen.

Mocht u na lezen interesse hebben om meer informatie te ontvangen over deze woning of wilt de woning bezichtigen? Neem dan contact op met ons kantoor.
Groenendael Makelaardij wordt echter geen enkele aansprakelijkheid aanvaard voor enige onvolledigheid, onjuistheid of anderszins, dan wel de gevolgen daarvan.

NEN2580:
De Meetinstructie is gebaseerd op de NEN2580. De Meetinstructie is bedoeld om een meer eenduidige manier van meten toe te passen voor het geven van een indicatie van de gebruiksoppervlakte. De Meetinstructie sluit verschillen in meetuitkomsten niet volledig uit, door bijvoorbeeld interpretatieverschillen, afrondingen of beperkingen bij het uitvoeren van de meting. “Deze informatie is door ons met de nodige zorgvuldigheid samengesteld.

Koopovereenkomst:
De koopovereenkomst is pas rechtsgeldig na ondertekening van verkoper en koper: Een mondelinge overeenstemming tussen de particuliere verkoper en de particuliere koper is niet rechtsgeldig, eer is nog geen koop.
Er is pas sprake van een rechtsgeldige transactie als de particuliere verkoper en de particuliere koper de koopovereenkomst hebben ondertekend.
Een bevestiging van de mondelinge overeenstemming per e-mail of een toegestuurd concept van de koopovereenkomst wordt overigens nog niet gezien als een ondertekende koopovereenkomst.

WOERDEN:
De gemeente Woerden bestaat uit 52.000 inwoners met een uitgebreid voorzieningenpakket van onder meer diverse basisscholen, voortgezet onderwijs van lagere technisch onderwijs tot aan Gymnasium, winkels in het centrum maar ook in het winkelcentrum in de directe omgeving.

Mocht u na lezen interesse hebben voor een bezichtiging neem dan contact op met ons kantoor.

Kenmerken

Overdracht
Referentienummer 132020362
Vraagprijs € 545.000,- k.k.
Status Verkocht
Aanvaarding Per vrijdag 8 mei 2026
Aangeboden sinds Dinsdag 9 december 2025
Laatste wijziging Dinsdag 17 februari 2026
Bouw
Type object Woonhuis, eengezinswoning, tussenwoning
Soort bouw Bestaande bouw
Bouwperiode 1999
Type dak Lessenaarsdak
Isolatievormen Dakisolatie
Dubbel glas
Vloerisolatie
Oppervlaktes en inhoud
Perceeloppervlakte 122 m²
Woonoppervlakte 115 m²
Inhoud 380 m³
Oppervlakte externe bergruimte 8 m²
Oppervlakte gebouwgebonden buitenruimte 28 m²
Indeling
Aantal bouwlagen 3
Aantal kamers 5 (waarvan 4 slaapkamers)
Aantal badkamers 1 (en 1 apart toilet)
Locatie
Ligging Aan rustige weg
Dichtbij openbaar vervoer
In woonwijk
Nabij school
Nabij snelweg
Vrij uitzicht
Tuin
Type Achtertuin
Oriëntering Zuidoost
Heeft een achterom Ja
Staat Normaal
Tuin 2 - Type Voortuin
Tuin 2 - Oriëntering Zuid-west
Tuin 2 - Staat Normaal
Energieverbruik
Energielabel A
CV ketel
CV ketel Nefit
Warmtebron Gas
Bouwjaar 2019
Combiketel Ja
Eigendom Eigendom
Uitrusting
Warm water CV-ketel
Verwarmingssysteem Centrale verwarming
Ventilatie methode Mechanische ventilatie
Keukenvoorzieningen Inbouwapparatuur
Badkamervoorzieningen Ligbad
Toilet
Wastafel
Tuin aanwezig Ja
Heeft rolluiken Ja
Heeft schuur/berging Ja
Heeft ventilatie Ja
Kadastrale gegevens
Kadastrale aanduiding Woerden A 6651
Perceeloppervlakte 122 m²
Omvang Geheel perceel
Eigendomsituatie Eigen grond