Top offer

For sale: De belegging bestaat uit: Voorstraat 1 winkel (daghoreca) - Voorstraat 1A appartement - Nieuwstraat 2B woning - Voorstraat 3 winkel - Voorstraat 3A maisonnette woning.

Voorstraat 1, 3441 CA Woerden
€1,250,000

Description

BELEGGINGSOBJECTEN:
Aan de poort van de Voorstraat staat een wit gepleisterde winkelwoonhuis in neoclassicistische stijl en is markant gelegen op de hoek van Voorstraat en de Nieuwstraat. Het pand bestaat twee bouwlagen met een mezzania onder een pannegedekt schilddak dat aan de achterzijde eindigt in een tuitgevel. Het bevat een winkel met dag-horeca met een half onderkelderd werkruimte en daglicht toetreding, één appartement en één woning met eigen entree.
Het pand is van oorsprong waarschijnlijk zeventien-eeuws. Op de begane grond bevindt zich aan de zijde van de Voorstraat een fraaie negentien eeuwse winkelpui.
Tevens bieden wij u ook aan Voorstraat 3 winkelruimte en 3A. maisonnette woning. De woning, appartementen alsmede en winkels zijn verhuurd.

- Voorstraat 1 winkel (daghoreca)
- Voorstraat 1A appartement
- Nieuwstraat 2B woning
- Voorstraat 3 winkel
- Voorstraat 3A maisonnette woning.

Layout

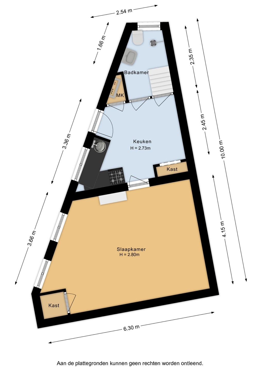
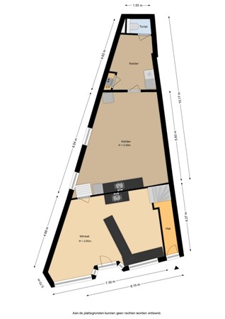
Voorstraat 1 = Winkelruimte met aan de achterzijde een werkruimte in het souterrain met daglicht toetreding en toiletruimte.
Voorstraat 1 A = hal met wenteltrap naar het appartement en de maisonnette woning Voorstraat 3A.
Voorstraat 3 winkelruimte
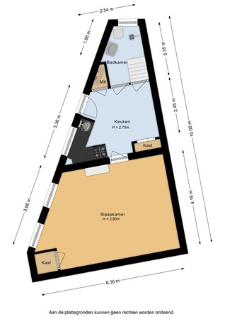
Nieuwstraat 2B via de buitentrap toegang naar deze woning. Entree, keuken, badkamer, slaapkamer en trap naar de tweede en derde verdieping.

First floor

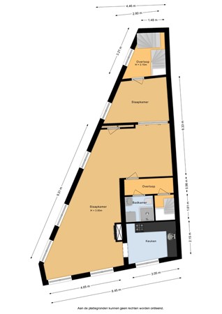
Voorstraat 1A: via de wenteltrap toegang naar het appartement, overloop naar de badkamer, ruime, lichte woonkamer, half open keuken met inbouwapparatuur en slaapkamer.
Voorstraat 3A: via de wenteltrap toegang naar de maisonnette woning.

Nieuwstraat 2B: overloop en de trap naar de tweede verdieping.

Second floor

Nieuwstraat 2B: Overloop en ruime woonkamer met toegangsdeur naar het balkon.

Balcony

Nieuwstraat 2B heeft een dakterras.

Details

Alle winkels en woningen beschikken over eigen meterkasten en centrale verwarmingsketel.

WOERDEN: (650 stadsrechten)
De gemeente Woerden bestaat uit ca 53.000 inwoners met een uitgebreid voorzieningenpakket van onder meer vele basisscholen, voortgezet onderwijs van lagere technisch onderwijs tot aan Gymnasium, sportverenigingen en vele winkels in het centrum maar ook in het winkelcentrum in de directe omgeving.

Woerden ligt centraal tussen de steden Utrecht, Rotterdam, Amsterdam en Den Haag. Met de auto bent u binnen 8 minuten op de A12, in circa 20 minuten op de A2 en binnen 50 minuten naar de luchthaven (Schiphol).

Woerden, centraal gelegen in het Groene Hart, heeft een bruisend centrum met volop parkeergelegenheid in de parkeerkelders. Er is een station en het centrum met al haar monumentale panden, modieuze kledingwinkels, warme bakkers, ambachtelijke slagers en bruine cafés. Aangrenzend het nieuwe en gezellige stadsplein met zonnige terrassen en restaurants van uiteenlopende stijl en smaak. Woerden is door haar centrale ligging in het Groene Hart het ideale start- en finishpunt voor wandel- en fietsroutes.

Mocht u na lezen interesse hebben meer informatie willen ontvangen over deze beleggingspanden of wilt u een bezichtiging? Neem dan contact op met ons kantoor.

NEN2580:
De Meetinstructie is gebaseerd op de NEN2580. De Meetinstructie is bedoeld om een meer eenduidige manier van meten toe te passen voor het geven van een indicatie van de gebruiksoppervlakte. De Meetinstructie sluit verschillen in meetuitkomsten niet volledig uit, door bijvoorbeeld interpretatieverschillen, afrondingen of beperkingen bij het uitvoeren van de meting. “Deze informatie is door ons met de nodige zorgvuldigheid samengesteld.

Koopovereenkomst:
De koopovereenkomst is pas rechtsgeldig na ondertekening van verkoper en koper: Een mondelinge overeenstemming tussen de verkoper en de koper is niet rechtsgeldig, er is nog geen koop.

Er is pas sprake van een rechtsgeldige transactie als de verkoper en de koper de koopovereenkomst hebben ondertekend.
Een bevestiging van de mondelinge overeenstemming per e-mail of een toegestuurd concept van de koopovereenkomst wordt overigens nog niet gezien als een ondertekende koopovereenkomst.

Groenendael Makelaardij wordt echter geen enkele aansprakelijkheid aanvaard voor enige onvolledigheid, onjuistheid of anderszins, dan wel de gevolgen daarvan.

Features

Offer
Reference number 132020187
Asking price €1,250,000
Yield 6%
Upholstered Yes
Upholstered Upholstered
Acceptance Immediately
Offered since 13 April 2023
Last updated 16 September 2025
Construction
Type of residence Investment, Retail space investment
Type of construction Existing estate
Construction period 1900
Surfaces and content
Plot size 243 m²
Floor area 335 m²
Outdoors
Location City centre
Near highway
Near public transport
Unobstructed view
Local amenities Bank within 500 meters
Cashmachine within 500 meters
Recreation at 500 meters to 1000 meters
Restaurant within 500 meters
Shop within 500 meters
Supermarket within 500 meters
Accessibility Busstop within 500 meters
Busjunction within 500 meters
Railway station within 500 meters
Highway exit at 1000 meters to 1500 meters
Cadastral informations
Cadastral designation Woerden C 876
Area 149 m²
Range Entire lot
Ownership Full ownership
Cadastral designation Woerden C 867
Area 94 m²
Range Entire lot
Ownership Full ownership
Please contact me

Recently viewed

View all listings