Sold subject to conditions

Sold subject to conditions: Altijd al gedroomd van je eigen horecazaak? Dan is dit jouw kans! Midden in het bruisende hart van het centrum, aan de levendige Rijnstraat, staat dit nette en karakteristieke pand.

Rijnstraat 87, 3441 BS Woerden
€470,000

Description

Altijd al gedroomd van je eigen horecazaak? Dan is dit jouw kans! Midden in het bruisende hart van het centrum, aan de levendige Rijnstraat, staat dit nette en karakteristieke pand te koop. De locatie is ideaal: omringd door winkels, horeca en toeristische trekpleisters, wat zorgt voor een constante stroom aan potentiële gasten.

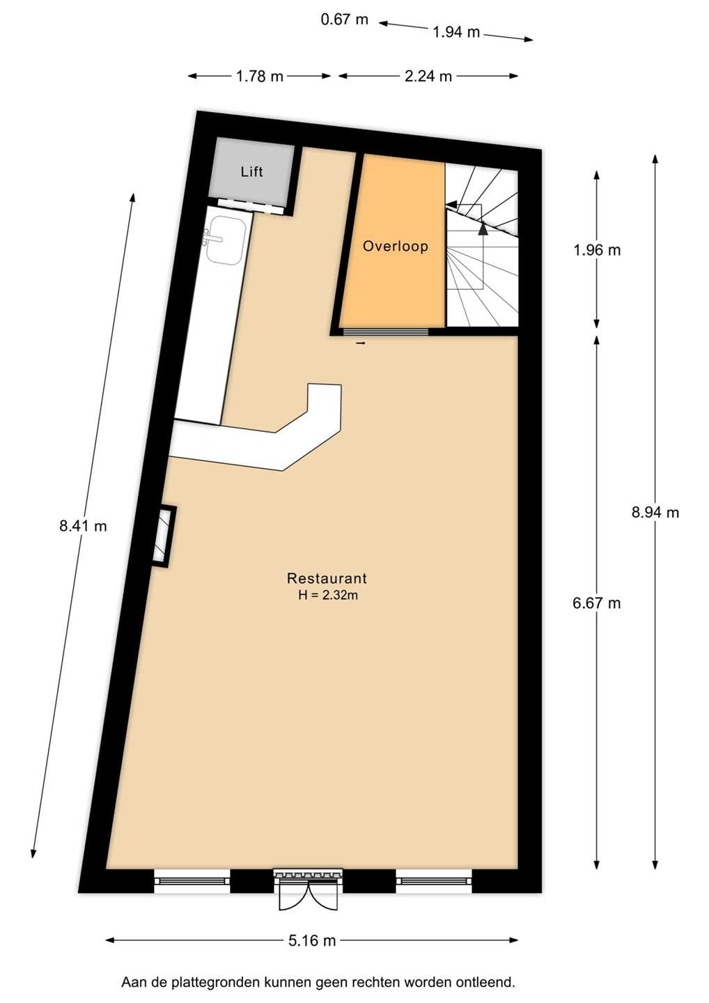
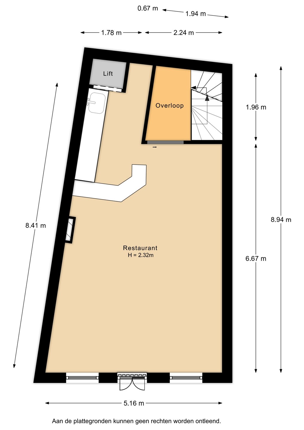
Indeling van het pand: Begane grond: Fastfoodgedeelte met volledig bedrijfskeuken.
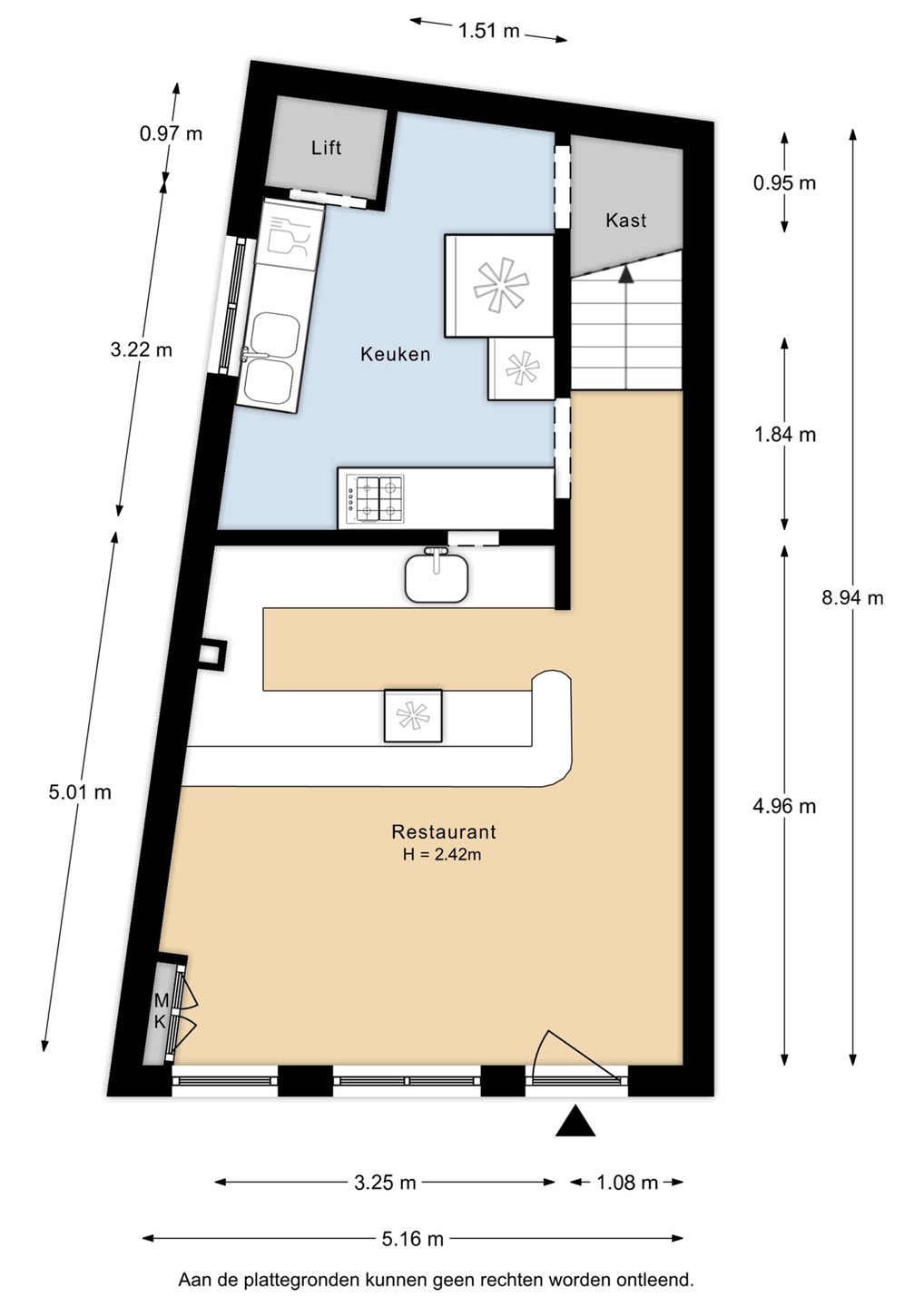
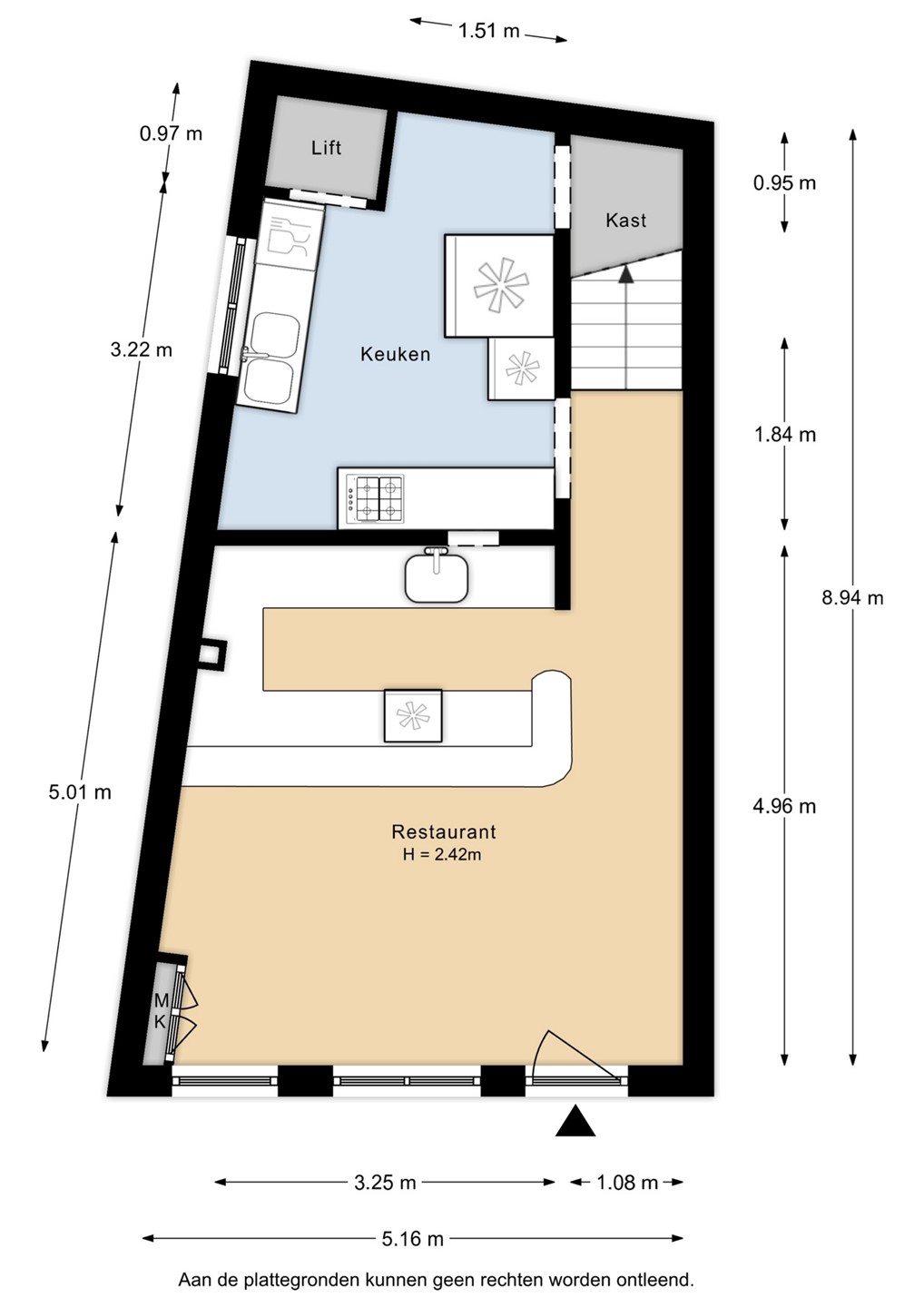
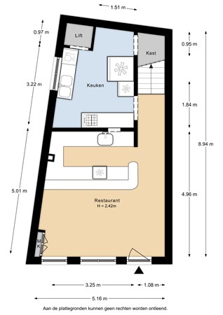
Eerste verdieping: Gezellig restaurantgedeelte met sfeervolle bar. (Ook te verbouwen tot een appartement).
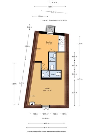
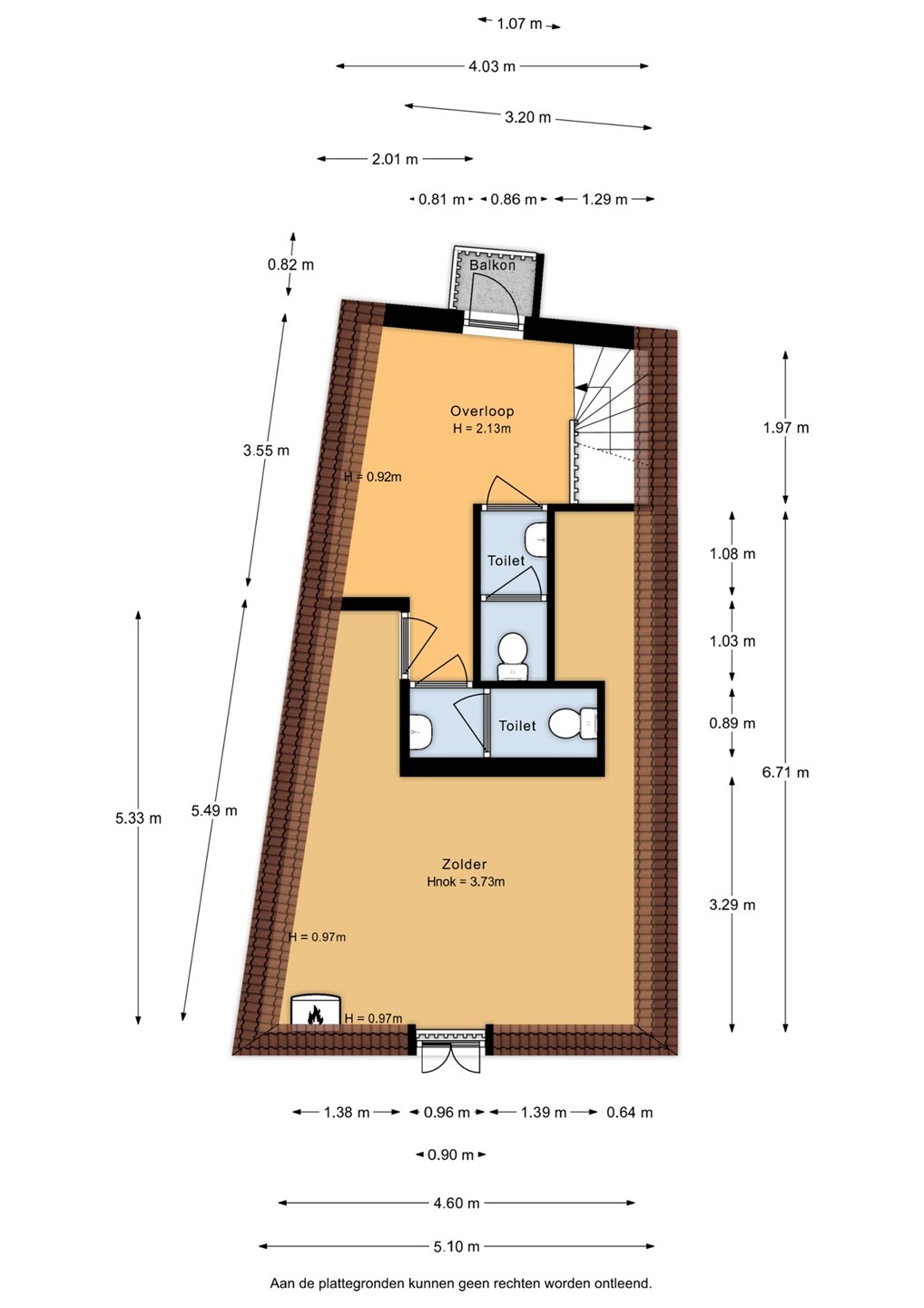
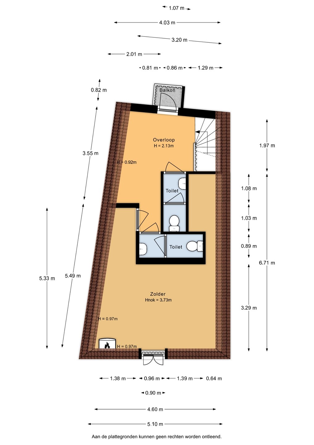
Tweede verdieping: Toiletruimte en berging. (Ook te verbouwen tot een appartement).
Deze horecazaak biedt volop mogelijkheden voor een ambitieuze en gedreven ondernemer die klaar is om zijn of haar stempel te drukken op de lokale horeca.
Een unieke kans op een toplocatie – grijp jij deze mogelijkheid?

Interesse?
Neem contact met ons op voor meer informatie of het plannen van een bezichtiging.

Layout

Entree, vanuit de entree direct toegang in het fastfood gedeelte met buffet/bar. Achter deze buffet/bar is een ruime keuken met magazijn. Achter in de keuken een goederenlift om goederen te verplaatsen vanuit de keuken naar de eerste verdieping. Verder een trap naar de eerste verdieping.

First floor

Op deze verdieping het restaurant gedeelte met een schitterend uitzicht over de Rijnstraat. Achter in dit restaurant gedeelte is de bar gesitueerd met de goederenlift. In dit restaurant kunnen ca 20 gasten plaatsnemen.

Second floor

Ruime hal met toegang naar de dames- en heren toilet. Ook op deze verdieping een ruime bergruimte en een vluchtweg.

Details

- de eerste en tweede verdieping kunnen ook verbouwd worden naar een woonruimte / appartement.
- Frans balkon op de eerste verdieping.
- centrale verwarmingsketel is geen eigendom

WOERDEN: (650 stadsrechten)
De gemeente Woerden bestaat uit ca 53.000 inwoners met een uitgebreid voorzieningenpakket van onder meer vele basisscholen, voortgezet onderwijs van lagere technisch onderwijs tot aan Gymnasium, sportverenigingen en vele winkels in het centrum maar ook in het winkelcentrum in de directe omgeving.

Woerden ligt centraal tussen de steden Utrecht, Rotterdam, Amsterdam en Den Haag. Met de auto bent u binnen 8 minuten op de A12, in circa 20 minuten op de A2 en binnen 50 minuten naar de luchthaven (Schiphol).

Woerden, centraal gelegen in het Groene Hart, heeft een bruisend centrum met volop parkeergelegenheid in de parkeerkelders. Er is een station en het centrum met al haar monumentale panden, modieuze kledingwinkels, warme bakkers, ambachtelijke slagers en bruine cafés. Aangrenzend het nieuwe en gezellige stadsplein met zonnige terrassen en restaurants van uiteenlopende stijl en smaak. Woerden is door haar centrale ligging in het Groene Hart het ideale start- en finishpunt voor wandel- en fietsroutes.

Mocht u na het lezen interesse hebben en meer informatie willen ontvangen over dit beleggingspand of wilt u een bezichtiging? Neem dan contact op met ons kantoor, wij staan u graag te woord. ( 0348 - 416886 )

Koopovereenkomst:
De koopovereenkomst is pas rechtsgeldig na ondertekening van verkoper en koper: Een mondelinge overeenstemming tussen de verkoper en de koper is niet rechtsgeldig, er is nog geen koop.

Er is pas sprake van een rechtsgeldige transactie als de verkoper en de koper de koopovereenkomst hebben ondertekend.
Een bevestiging van de mondelinge overeenstemming per e-mail of een toegestuurd concept van de koopovereenkomst wordt overigens nog niet gezien als een ondertekende koopovereenkomst.

Groenendael Makelaardij wordt echter geen enkele aansprakelijkheid aanvaard voor enige onvolledigheid, onjuistheid of anderszins, dan wel de gevolgen daarvan.

Features

Offer
Reference number 132020293
Asking price €470,000
Upholstered Yes
Upholstered Upholstered
Status Sold subject to conditions
Acceptance Immediately
Offered since 29 October 2024
Last updated 25 November 2025
Construction
Type of residence Hotel/restaurant/café, Eatery, Cafetaria, Cafe/restaurant
Floor 1st floor
Type of construction Existing estate
Construction period 1900
Surfaces and content
Plot size 44 m²
Floor area 116 m²
Sales area 81 m²
Outdoors
Location City centre
Near public transport
Local amenities Bank within 500 meters
Cashmachine within 500 meters
Recreation within 500 meters
Restaurant within 500 meters
Shop within 500 meters
Supermarket within 500 meters
Accessibility Busstop within 500 meters
Busjunction at 500 meters to 1000 meters
Railway station at 1000 meters to 1500 meters
Highway exit at 1500 meters to 2000 meters
Energy consumption
Energy certificate D
Cadastral informations
Cadastral designation Woerden C 583
Area 44 m²
Range Entire lot
Ownership Full ownership
Please contact me

Recently viewed

View all listings