Top offer
Rented subject to conditions

Rented subject to conditions: Perfecte kantoor locatie dicht bij de Rijksweg A12 het centrum en het treinstation. Hierdoor is de bereikbaarheid optimaal. Voldoende parkeergelegenheid op eigen terrein.

Jaap Bijzerweg 11, 3446 CR Woerden
€3,910 /mo €112/m2/yr

Description

Aan de Jaap Bijzerweg te Woerden bieden wij meerdere, recent gerenoveerde, representatieve kantoorruimten te huur aan in een gezamenlijk kantoorpand.
Woerden ligt centraal in Nederland met een reistijd van 15 minuten naar Utrecht, 50 minuten naar Rotterdam en nog geen 45 minuten tot de luchthaven Schiphol.

Het kantoorpand bevind zich op korte afstand van zowel de A12 op/afrit Woerden als de Woerdense binnenstad en het treinstation (slechts c.a. 10 minuten loopafstand), Hierdoor is de bereikbaarheid optimaal. Voor de entree is er voldoende parkeergelegenheid op eigen terrein.

De kantoren bevinden zich op de eerste verdieping en zijn toegankelijk via een brede trap in de ruime entreehal op de begane grond.
Alle kantoorruimtes zijn voorzien van hoge snelheid wifi, pvc vloer, verlaagde plafonds en led verlichting. Tevens zijn de meeste ruimtes voorzien van airco units en zonnewering.

- toiletgroepen
- keuken (2025) met vaatwasser en koel-vries combinatie.

De kantoorruimtes wordt / worden aangeboden met een voorschot op de service kosten voor het verbruik van:
- elektra, water en verwarming (nutsvoorzieningen)
- glazenwasser
- waterschapslasten
- rioolheffing
- twee keer per week schoonmaak openbare ruimtes
- één maal schoonmaak kantoor ruimtes
- hoge snelheid glasvezel internet 200 mb / sec.
- afvoer van afval en papier/karton

Layout

Entree, ruime hal, wacht ruimte en moderne, brede, lichte trap naar de verdieping.

First floor

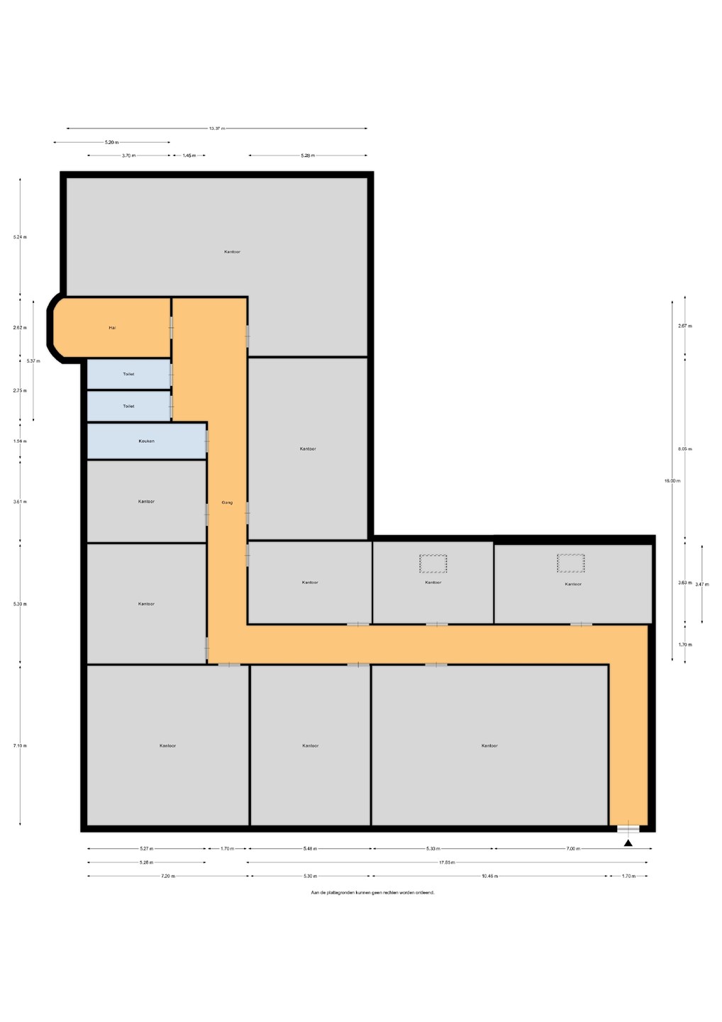
A - kantoorruime met een lengte van 10,46 en een breedte van 7.10 ( ca. 75m²)
B - kantoorruime met een lengte van 5.32 en een breedte van 7.10 ( ca. 38 m² )
C - kantoorruime met een lengte van 7.00 en een breedte van 7.10 ( ca. 51 m² )
D - kantoorruime met een lengte van 5.30 en een breedte van 5.28 ( ca. 28 m² ) Verhuurd
E - kantoorruime met een lengte van 5.28 en een breedte van 3.60 ( ca. 19 m² ) Verhuurd
F - kantoorruime met een lengte van 12.43 en een breedte van 5.24 & 5.32 x 2.60 ( ca. 80 m² )
G - vergaderruimte met een lengte van 7.68 en een breedte van 5.32 ( ca. 42 m² ) met lichtkoepel
H - kantoorruime met een lengte van 3.52 en een breedte van 5.32 ( ca. 19 m² ) met lichtkoepel
I - Vergaderruime / opslag met een lengte van 5.31 en een breedte van 3.52 ( ca. 19 m² ) met lichtkoepel
J - Vergaderruimte / opslag met een lengte van 6.98 en een breedte van 3.52 ( ca. 25 m² ) met lichtkoepel

De kantoorruimtes wordt verhuurd voorzien van de volgende voorzieningen:
* gezamenlijke toiletruimten
* gezamenlijke pantry / keuken
* pvc vloer.
* brandblusser(s)
* geïsoleerde wanden
* systeemplafond met led verlichting
* wand contact dozen (wcd) in de kabelgoot
* enkele ruimtes zijn voorzien van airconditioning en zonwering

Details

Huurperiode:
In overleg.

Parkeren
op eigen terrein voor het gebouw

Huurprijsbetaling:
De betaling van de huur, eventuele servicekosten en de eventueel verschuldigde omzetbelasting vind elke maand bij vooruitbetaling plaats.

Zekerheidstelling:
Bij ondertekening van de huurovereenkomst zal huurder een bankgarantie stellen of een waarborgsom storten ter grootte van (minimaal) 3 maanden huur en eventuele servicekosten, alsmede de hierover verschuldigde omzetbelasting.

Huurprijsaanpassing:
Jaarlijks, voor het eerst één jaar na ingangsdatum van de huurovereenkomst, op basis van de wijziging van het maandindexcijfer volgens de consumentenprijsindex (CPI) reeks "alle huishoudens" (2015=100), gepubliceerd door het Centraal Bureau voor de Statistiek (CBS).

Huurovereenkomst:
Huurovereenkomst conform het standaardmodel van de Raad voor Onroerende Zaken (ROZ) "Kantoorruimte en andere bedrijfsruimte in de zin van artikel 7:230 BW", versie februari 2015

Woerden ligt centraal tussen de steden Utrecht, Rotterdam, Amsterdam en Den Haag. Met de auto bent u binnen 3 minuten op de A12, in circa 18 minuten op de A2 en binnen 50 minuten van de luchthaven (Schiphol).

Indrukwekkende en elegante historische monumenten geven de stad een eigen karakter. Het levendige centrum met een ruime keuze aan winkels, restaurants, cafés en terrassen is uitnodigend.

Groene Hart
Woerden is de hoofdstad van het Groene Hart. De verschillende gebieden binnen het Groene Hart van Holland hebben hun eigen karakter en uitstraling. Ieder gebied is uniek qua ligging, landschap en cultuurhistorie. Samen maken zij het Groene Hart van Holland een bijzonder landschap.

Horeca
Er zijn talloze restaurants in de directe omgeving. Het aanbod varieert van gemoedelijke brasserieën tot exquise sterrenrestaurants. in het oude stadscentrum van Woerden is het ook goed toeven. Er zijn inmiddels tientallen restaurants, bistro's, kroegjes en lunchrooms. op en rond het Kerkplein in Woerden is het elke dag een gezellige drukte.

Beleving
Er is haast elke week wel een evenement te beleven in Woerden. Van Koeienmarkt tot de vakantieweek. Woerden bruist. Voor ieder wat wils, jong en oud.

Mocht u na lezen interesse hebben om meer informatie willen ontvangen over deze kantoorruimte of wilt bezichtigen? Neem dan contact op met ons kantoor.

ALTERNATIEVE BEZICHTIGINGEN:
Wij bieden u ook een alternatieve bezichtiging. U kunt samen met de makelaar van Groenendael Makelaardij B.V. digitaal door een object ‘lopen’. Net als bij een gewone bezichtiging.

HOE WERKT HET?
Wanneer u deze ruimte op Funda ziet, belt u ons op en vraagt om een online bezichtiging. Of geeft u in het opmerkingsveld bij bezichtiging/contact aanvragen, aan dat u een online bezichtiging wenst.
In overleg met de makelaar, bezichtigt u de ruimte op een afgesproken tijdstip. Het enige wat u nodig heeft is een pc / tablet en een internetverbinding. U hoeft niets te downloaden.

DE VOORDELEN OP EEN RIJ
Er is interactie met de makelaar, u kunt gericht vragen stellen.
U krijgt een beter beeld van de kantoorruimte dan met foto’s en plattegrond(en) alleen.
U kunt de ruimte eenvoudig samen bekijken met bijvoorbeeld uw partner, die u anders ook graag had meegenomen naar de bezichtiging.

Mocht u na lezen interesse hebben om meer informatie te ontvangen over deze winkel of wilt u de winkel bezichtigen? Neem dan contact op met ons kantoor.

Groenendael Makelaardij wordt echter geen enkele aansprakelijkheid aanvaard voor enige onvolledigheid, onjuistheid of anderszins, dan wel de gevolgen daarvan.

De Meetinstructie is bedoeld om een meer eenduidige manier van meten toe te passen voor het geven van een indicatie van de gebruiksoppervlakte. De Meetinstructie sluit verschillen in meetuitkomsten niet volledig uit, door bijvoorbeeld interpretatieverschillen, afrondingen of beperkingen bij het uitvoeren van de meting. “Deze informatie is door ons met de nodige zorgvuldigheid.
U in

Features

Offer
Reference number 132020338
Asking price €3,910 per month
Deposit €11,730
Service costs €2,094 per month
Upholstered Yes
Upholstered Upholstered
Status Rented subject to conditions
Acceptance Immediately
Offered since 27 March 2025
Last updated 17 February 2026
Construction
Type of residence Office
Type of construction Existing estate
Construction period 1970
Certifications Fire safety
Surfaces and content
Floor area 370 m²
In units from 175 m²
Layout
Number of floors 1
Outdoors
Location Business park
Near highway
Near public transport
Near PVD
Office park
On a busy street
Unobstructed view
Local amenities Bank at 500 meters to 1000 meters
Cashmachine at 500 meters to 1000 meters
Recreation at 500 meters to 1000 meters
Restaurant within 500 meters
Shop at 500 meters to 1000 meters
Supermarket within 500 meters
Accessibility Busstop within 500 meters
Railway station within 500 meters
Highway exit within 500 meters
Cadastral informations
Cadastral designation Woerden A
Range Entire lot
Ownership Full ownership
Please contact me

Recently viewed

View all listings