Beschrijving
Welkom thuis in de Planetenbuurt!
In de geliefde Planetenbuurt van Alphen aan den Rijn bieden wij deze goed verzorgde en deels gemoderniseerde tussenwoning aan met een speelse Z-kamer indeling en met meerdere buitenruimtes. De woning is de afgelopen jaren op diverse punten vernieuwd, waaronder een moderne inbouwkeuken (2023), vloerverwarming op de begane grond en kunststof kozijnen met HR++ glas aan de achterzijde en de badkamer. Een comfortabele en onderhoudsarme woning op een rustige, centrale locatie. waar comfort, groen en voorzieningen samenkomen. Ideaal voor (jonge) gezinnen en iedereen die centraal maar rustig wil wonen.
De Planetenbuurt staat bekend als een rustige, kindvriendelijke wijk met veel groen.
Op korte afstand vindt u:
- Basisscholen en kinderopvang
- Winkelcentra en supermarkten
- Openbaar vervoer en uitvalswegen (N11, A4)
- Recreatiegebieden en parken
- Het centrum van Alphen aan den Rijn is eenvoudig per fiets bereikbaar.
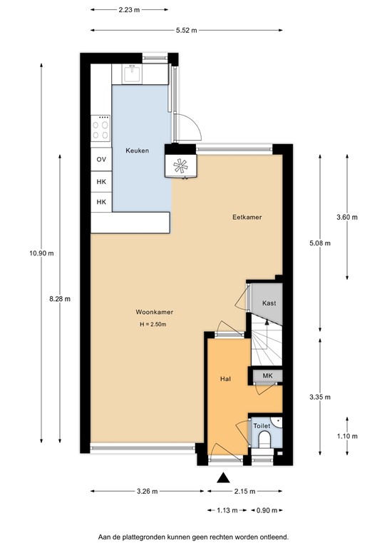
Indeling
De woning is uitgevoerd met een praktische en speelse Z-kamer, waardoor wonen en eten op natuurlijke wijze van elkaar gescheiden zijn. De begane grond is in 2023 gemoderniseerd en voorzien van strakke vloertegels met comfortabele vloerverwarming. Dit zorgt voor een moderne uitstraling en een aangenaam woonklimaat het hele jaar door. De moderne inbouwkeuken (2023) is strak vormgegeven en van alle gemakken voorzien. Dankzij de recente plaatsing verkeert de keuken in uitstekende staat en biedt deze volop werk- en bergruimte. Een fijne plek voor zowel de dagelijkse maaltijd als uitgebreid koken.
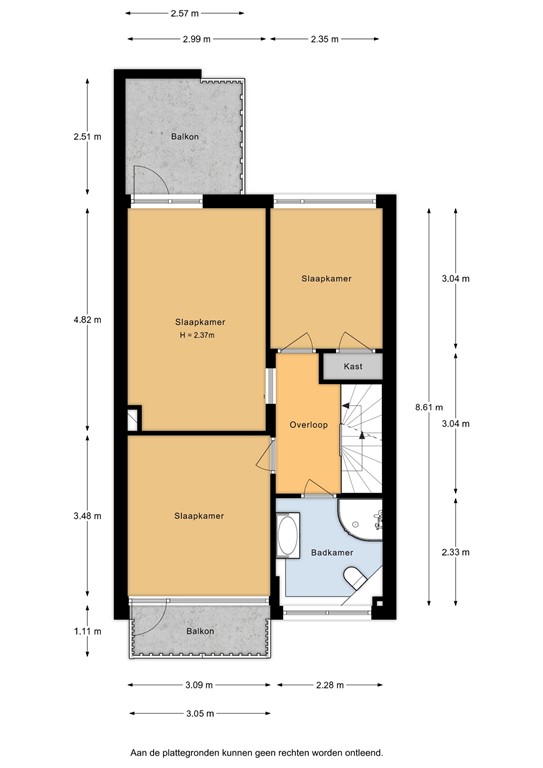
Eerste verdieping
Op deze verdiepingen bevinden zich drie slaapkamers, geschikt als slaap-, werk- of hobbykamer. Een bijzonder pluspunt is de aanwezigheid van het dakterras, gesitueerd op zowel de eerste als tweede verdieping. Daarnaast beschikt de woning op deze verdieping over een balkon, waardoor u op meerdere plekken buiten kunt genieten van zon en buitenlucht. De badkamer is netjes verzorgd en voorzien van kwartronde douchebak met douchescherm, wastafelmeubel, wandcloset en handdoekradiator.
Tweede verdieping
Op deze zolder verdieping een ruime overloop met bergkasten en aansluitingen voor de wasmachine en droger. Verder op deze verdieping een ruime vierde slaapkamer met een ruime bergruimte. Vanuit de slaapkamer de toegangsdeur naar het ruime dakterras op het zuiden.
Balkon
Een absoluut uniek kenmerk van deze woning is de aanwezigheid van meerdere buitenruimtes. Op de eerste verdieping beschikt de woning over een balkon, perfect voor een rustig moment in de ochtend of een korte pauze in de buitenlucht. Daarnaast zijn er maar liefst twee dakterrassen, gesitueerd op zowel de eerste als tweede verdieping. Hierdoor kunt u op ieder moment van de dag genieten van zon, rust en privacy. Of u nu wilt ontspannen met een goed boek, buiten wilt dineren of simpelweg wilt genieten van het uitzicht: hier kan het allemaal.
Tuin
De tuin is netjes verzorgd en recent verbeterd. In 2025 is de schutting vernieuwd, wat zorgt voor een frisse uitstraling en extra privacy. De achterzijde van de woning is in 2023 uitgevoerd met kunststof kozijnen en deuren voorzien van HR++ glas, wat bijdraagt aan comfort en energiezuinig wonen. Ook de vrijstaande berging is in datzelfde jaar uitgevoerd in kunststof. Ligging van de tuin: zuid.
Bijzonderheden
Alle feiten op een rijtje!!
- Z-kamer indeling met prettige lichtinval en vrij uitzicht
- Nieuwe inbouwkeuken (2023)
- Vloertegels met vloerverwarming op de begane grond (2023)
- Kunststof kozijnen en deuren met HR++ glas aan de achterzijde (2023)
- Kunststof vrijstaande berging (2023)
- Vernieuwde schutting in de tuin (2025)
- Twee dakterrassen (1e en 2e verdieping) en balkon op de 1e verdieping
- Intergas combi cv-ketel (2023)
- Rustige en populaire woonwijk
- Nabij voorzieningen en openbaar vervoer
- Alle verdiepingen zijn uitgevoerd met betonnen vloeren, wat zorgt voor een solide constructie en goede geluidsisolatie.
NEN2580:
De Meetinstructie is gebaseerd op de NEN2580. De Meetinstructie is bedoeld om een meer eenduidige manier van meten toe te passen voor het geven van een indicatie van de gebruiksoppervlakte. De Meetinstructie sluit verschillen in meetuitkomsten niet volledig uit, door bijvoorbeeld interpretatieverschillen, afrondingen of beperkingen bij het uitvoeren van de meting. “Deze informatie is door ons met de nodige zorgvuldigheid samengesteld.
Koopovereenkomst:
De koopovereenkomst is pas rechtsgeldig na ondertekening van verkoper en koper: Een mondelinge overeenstemming tussen de particuliere verkoper en de particuliere koper is niet rechtsgeldig, eer is nog geen koop.
Er is pas sprake van een rechtsgeldige transactie als de particuliere verkoper en de particuliere koper de koopovereenkomst hebben ondertekend.
Een bevestiging van de mondelinge overeenstemming per e-mail of een toegestuurd concept van de koopovereenkomst wordt overigens nog niet gezien als een ondertekende koopovereenkomst.
Interesse?
Maak snel een afspraak voor een bezichtiging en ervaar zelf het wooncomfort van deze fijne woning in de Planetenbuurt.
Plattegronden
Poolsterstraat 12 - Situatie - 2D.jpg
Poolsterstraat 12 - Situatie - 3D.jpg
Poolsterstraat 12 - Begane grond - 2D.jpg
Poolsterstraat 12 - Begane grond - 3D.jpg
Poolsterstraat 12 - 1e verdieping - 2D.jpg
Poolsterstraat 12 - 1e verdieping - 3D.jpg
Poolsterstraat 12 - 2e verdieping - 2D.jpg
Poolsterstraat 12 - 2e verdieping - 3D.jpg