Description

Spacious family home with sunny garden and bright, open kitchen
Are you looking for a well-maintained terraced house with more space than you'd expect? Then this neat and inviting family home is definitely worth a visit! With three bedrooms, a low-maintenance south-facing garden, and a location in a child-friendly neighbourhood just a short bike ride from Amsterdam’s vibrant city centre, this property has everything a family could wish for!

Let’s highlight the key features:
Spacious kitchen-diner with built-in appliances
Bright extended living room with direct access to the sunny south-facing garden
Three well-sized bedrooms – ideal for families
Easy parking in the immediate vicinity
Child-friendly location near schools, playgrounds, and local amenities
Want to cycle into the city centre? You'll be there in just 15 minutes!

In short: A lovely family home with lots of green space and play areas in Geuzenveld, Amsterdam!
This residential area is quiet, spaciously laid out, and surrounded by greenery. Within walking distance, you'll find schools, shops, public transport, and major roads. A perfect spot for those seeking a comfortable family home in Amsterdam.

Layout

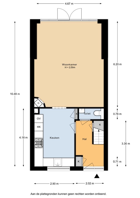
Ruime hal met meterkast, trapopgang en toiletruimte. De lichte, uitgebouwde rechthoekige woonkamer beschikt over twee openslaande deuren naar de tuin en biedt vrij uitzicht op het speelveld. De open keuken is gesitueerd aan de voorzijde van de woning en uitgerust met een lichte L-vormige inbouwkeuken. Deze is voorzien van diverse inbouwapparatuur, waaronder een 5-pits gaskookplaat, afzuigschouw, combi-oven, vaatwasser, koel-/vriescombinatie en voldoende kastruimte voor al uw kook- en keukenbenodigdheden. Het raam boven het aanrechtblad zorgt voor aangenaam daglicht tijdens het koken en biedt uitzicht op de straatzijde.

First floor

De eerste verdieping is voorzien van een ruime overloop, twee ruime slaapkamers met inbouwkasten en een badkamer. De slaapkamers zijn netjes, lekker licht en goed van afmeting, waardoor je hier helemaal tot rust komt. De badkamer is compact maar netjes. De combinatie van vloertegels, de lichte wanden en de houtlook kasten geven de ruimte een stoere uitstraling. Deze badkamer is voorzien van een douche, wastafelmeubel en wandcloset. Heerlijk om je dag te beginnen of te eindigen; met een warme of verfrissende douche.

Second floor

Tenslotte bereikt je via een vaste trap de royale zolder, waar zich ook de C.V.-ketel bevindt. De royale zolderverdieping is een volwaardige derde slaapkamer en vormt een waardevolle toevoeging aan de woning. Dankzij de grote dakkapel aan de achterzijde over de volle breedte is deze ruimte niet alleen bijzonder licht, maar ook zeer functioneel in te richten. Of je nu kiest voor een ruime ouderslaapkamer, een tienerkamer of een rustige thuiswerkplek: hier is het allemaal mogelijk.
De zolderkamer is netjes afgewerkt en voorzien van slim geplaatste inbouwkasten, waardoor je optimaal gebruik maakt van de beschikbare ruimte. Ook is er voldoende plek voor een groot bed, bureau of zitgedeelte. Kortom, een veelzijdige, comfortabele verdieping met volop daglicht en bergruimte – ideaal voor gezinnen die net dat beetje extra nodig hebben.

Garden

De achtertuin is onderhoudsvriendelijk aangelegd en grotendeels betegeld – ideaal voor wie weinig omkijken wil naar het tuinonderhoud, en toch volop wil genieten van het buitenleven. Enkele groene borders aan de zijkanten zorgen voor een sfeervol accent en bieden ruimte voor beplanting of kleurige bloemen.
Dankzij de gunstige zonligging profiteer je hier van veel zonuren, perfect voor ontspanning, buiten eten of het creëren van een gezellige loungehoek. Achter in de tuin bevindt zich een kleine berging van onderhoudsvrij materiaal, ideaal voor het opbergen van fietsen, tuingereedschap of kussens.
Via de achterom is de tuin gemakkelijk bereikbaar, wat extra praktisch is voor bijvoorbeeld fietsen of tuinaccessoires.
Een fijne, goed gelegen buitenruimte die rust, privacy en gemak biedt!

Details

* Rustige ligging aan het groen
* energielabel C
* drie slaapkamers
* Stenenvloer op de begane grond
* Erfpacht is afgekocht tot 31 januari 2054.
* De koopakte en leveringsakte zullen uitsluitend worden opgemaakt volgens het model van de Koninklijke Notariële Beroepsorganisatie en het Ringmodel koopcontract Amsterdam, door een notaris kantoorhoudende uitsluitend in Amsterdam of Amstelveen.

Een prachtig stekje in Geuzenveld, waar rust, natuur en privacy gepaard gaat met het Amsterdamse stadsleven op een korte afstand.
Er bevinden zich meerdere winkels in de directe omgeving voor de dagelijkse voorzieningen. Verder zijn er diverse scholen en recreatiemogelijkheden in de buurt.
Ook zijn er meerdere openbaar vervoersmogelijkheden en liggen de uitvalswegen naar de A9, A10, A4, A5 en Haarlemmerweg op slechts een aantal minuten rijafstand verwijderd.
 
NEN2580:  
De Meetinstructie is gebaseerd op de NEN2580. De Meetinstructie is bedoeld om een meer eenduidige manier van meten toe te passen voor het geven van een indicatie van de gebruiksoppervlakte. De Meetinstructie sluit verschillen in meetuitkomsten niet volledig uit, door bijvoorbeeld interpretatieverschillen, afrondingen of beperkingen bij het uitvoeren van de meting. “Deze informatie is door ons met de nodige zorgvuldigheid samengesteld. 
 
Koopovereenkomst:  
De koopovereenkomst is pas rechtsgeldig na ondertekening van verkoper en koper: Een mondelinge overeenstemming tussen de particuliere verkoper en de particuliere koper is niet rechtsgeldig, eer is nog geen koop.  
Er is pas sprake van een rechtsgeldige transactie als de particuliere verkoper en de particuliere koper de koopovereenkomst hebben ondertekend.  
 
Een bevestiging van de mondelinge overeenstemming per e-mail of een toegestuurd concept van de koopovereenkomst wordt overigens nog niet gezien als een ondertekende koopovereenkomst.

Features