| Adres: | Rijnstraat 87, 3441 BS Woerden |
| Prijs | € 470.000,- k.k. |
| Type object | Horecapand, Eetcafé, Cafetaria/restaria, Café/restaurant |
| Perceeloppervlakte | 44 m² |
| Totale VVO | 116 m² |
| Aanvaarding | Direct |
| Status | Verkocht onder voorbehoud |
Altijd al gedroomd van je eigen horecazaak? Dan is dit jouw kans! Midden in het bruisende hart van het centrum, aan de levendige Rijnstraat, staat dit nette en karakteristieke pand te koop. De locatie is ideaal: omringd door winkels, horeca en toeristische trekpleisters, wat zorgt voor een constante stroom aan potentiële gasten. Indeling van het pand: Begane grond: Fastfoodgedeelte met volledig bedrijfskeuken. Eerste verdieping: Gezellig restaurantgedeelte met sfeervolle bar. (Ook te verbouwen tot een appartement). Tweede verdieping: Toiletruimte en berging. (Ook te verbouwen tot een appartement). Deze horecazaak biedt volop mogelijkheden voor een ambitieuze en gedreven ondernemer die klaar is om zijn of haar stempel te drukken op de lokale horeca. Een unieke kans op een toplocatie – grijp jij deze mogelijkheid? Interesse? Neem contact met ons op voor meer informatie of het plannen van een bezichtiging.
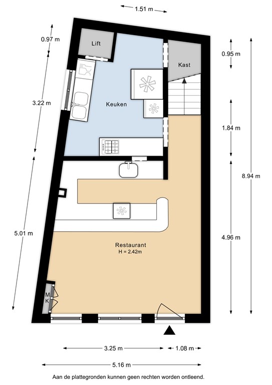
Entree, vanuit de entree direct toegang in het fastfood gedeelte met buffet/bar. Achter deze buffet/bar is een ruime keuken met magazijn. Achter in de keuken een goederenlift om goederen te verplaatsen vanuit de keuken naar de eerste verdieping. Verder een trap naar de eerste verdieping.
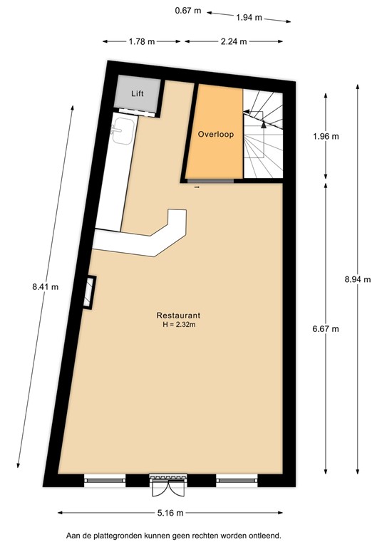
Op deze verdieping het restaurant gedeelte met een schitterend uitzicht over de Rijnstraat. Achter in dit restaurant gedeelte is de bar gesitueerd met de goederenlift. In dit restaurant kunnen ca 20 gasten plaatsnemen.
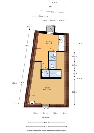
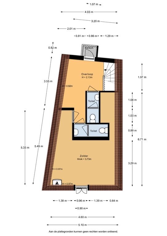
Ruime hal met toegang naar de dames- en heren toilet. Ook op deze verdieping een ruime bergruimte en een vluchtweg.
- de eerste en tweede verdieping kunnen ook verbouwd worden naar een woonruimte / appartement. - Frans balkon op de eerste verdieping. - centrale verwarmingsketel is geen eigendom WOERDEN: (650 stadsrechten) De gemeente Woerden bestaat uit ca 53.000 inwoners met een uitgebreid voorzieningenpakket van onder meer vele basisscholen, voortgezet onderwijs van lagere technisch onderwijs tot aan Gymnasium, sportverenigingen en vele winkels in het centrum maar ook in het winkelcentrum in de directe omgeving. Woerden ligt centraal tussen de steden Utrecht, Rotterdam, Amsterdam en Den Haag. Met de auto bent u binnen 8 minuten op de A12, in circa 20 minuten op de A2 en binnen 50 minuten naar de luchthaven (Schiphol). Woerden, centraal gelegen in het Groene Hart, heeft een bruisend centrum met volop parkeergelegenheid in de parkeerkelders. Er is een station en het centrum met al haar monumentale panden, modieuze kledingwinkels, warme bakkers, ambachtelijke slagers en bruine cafés. Aangrenzend het nieuwe en gezellige stadsplein met zonnige terrassen en restaurants van uiteenlopende stijl en smaak. Woerden is door haar centrale ligging in het Groene Hart het ideale start- en finishpunt voor wandel- en fietsroutes. Mocht u na het lezen interesse hebben en meer informatie willen ontvangen over dit beleggingspand of wilt u een bezichtiging? Neem dan contact op met ons kantoor, wij staan u graag te woord. ( 0348 - 416886 ) Koopovereenkomst: De koopovereenkomst is pas rechtsgeldig na ondertekening van verkoper en koper: Een mondelinge overeenstemming tussen de verkoper en de koper is niet rechtsgeldig, er is nog geen koop. Er is pas sprake van een rechtsgeldige transactie als de verkoper en de koper de koopovereenkomst hebben ondertekend. Een bevestiging van de mondelinge overeenstemming per e-mail of een toegestuurd concept van de koopovereenkomst wordt overigens nog niet gezien als een ondertekende koopovereenkomst. Groenendael Makelaardij wordt echter geen enkele aansprakelijkheid aanvaard voor enige onvolledigheid, onjuistheid of anderszins, dan wel de gevolgen daarvan.
| Referentienummer | 132020293 |
| Vraagprijs | € 470.000,- k.k. |
| Inrichting | Ja |
| Inrichting | Gestoffeerd |
| Status | Verkocht onder voorbehoud |
| Aanvaarding | Direct |
| Aangeboden sinds | Dinsdag 29 oktober 2024 |
| Laatste wijziging | Dinsdag 25 november 2025 |
| Type object | Horecapand, Eetcafé, Cafetaria/restaria, Café/restaurant |
| Woonlaag | 1e woonlaag |
| Soort bouw | Bestaande bouw |
| Bouwperiode | 1900 |
| Perceeloppervlakte | 44 m² |
| VVO | 116 m² |
| Verkoopoppervlakte | 81 m² |
| Ligging | Dichtbij openbaar vervoer In centrum |
| Lokale voorzieningen | Bank binnen 500 meter Geldautomaat binnen 500 meter Recreatie binnen 500 meter Restaurant binnen 500 meter Winkel binnen 500 meter Supermarkt binnen 500 meter |
| Bereikbaarheid | Bushalte binnen 500 meter Busknooppunt op 500 meter tot 1000 meter Treinstation op 1000 meter tot 1500 meter Afrit van de snelweg op 1500 meter tot 2000 meter |
| Energielabel | D |
| Kadastrale aanduiding | Woerden C 583 |
| Perceeloppervlakte | 44 m² |
| Omvang | Geheel perceel |
| Eigendomsituatie | Eigen grond |